Размещено на портале Архи.ру (www.archi.ru)

28.07.2007

Архитектурная математика древнерусских зодчих

Б. А. Рыбаков. Архитектурная математика древнерусских зодчих // Советская археология. № 1, 1957 г.

Постройки древнерусских зодчих до сих пор восхищают продуманной соразмерностью, удивительной гармонией своих частей, строгой логикой архитектурного замысла.

Методы архитектурных расчетов XI—XIII вв. нам почти неизвестны. Подходя к их раскрытию с нашей современной меркой, рассматривая древнюю архитектуру с точки зрения эвклидовой геометрии, мы можем открыть и математически обосновать заключенные в ней пропорциональные соотношения. Интересная и ценная работа в этом направлении проделана К. Н. Афанасьевым1).

Однако у нас нет никакой уверенности в том, что и древнерусские зодчие шли в своих расчетах тем же путем, отправляясь от теоретически безукоризненных положений великого греческого геометра. Наоборот, свидетельства средневековых математиков говорят о применении их современниками приближенных, практически удобных, но теоретически не обоснованных расчетов.

Так, например, знаменитый персидский математик Абуль-Вафа, современник древнейших русских церковных построек, переводчик Эвклида и Диофанта, писал в предисловии к сборнику составленных им геометрических задач: «В настоящей книге мы займемся разложением фигур. Вопрос этот необходим многим практикам и составляет предмет особенных их разысканий... Ввиду этого мы дадим основные (теоретические) начала, которые относятся к данным вопросам, так как все методы, применяемые рабочими, не основанные на каких либо началах, не заслуживают доверия и весьма ошибочны; между тем на основании таких методов они производят различные действия»2).

К сожалению, эти «методы, применяемые рабочими» (в архитектуре и ремесле) остались нам неизвестны.

Тайна расчетов и рецептов была характерна для всех средневековых мастеров; даже передавая наследие учителей и свой опыт ученикам, они старались зашифровать свои советы, скрывая, например, под именем «желтой ящерицы» золото. Вероятно, и математические расчеты, осужденные Абуль-Вафой, составляли также секрет зодчих.

В русской средневековой литературе есть несколько интересных записей, освещающих отдельные детали расчетно-строительного процесса. В общеизвестном рассказе Киево-Печерского Патерика о постройке в 1073 г. Успенской церкви обычно обращалось внимание лишь на то, как



1) К. Н. Афанасьев. Про пропорцiнальнiсть пам'ятниюв древньоруськoi apxiтектури XI—XII ст. Архiтектурнi пам'ятники, Киiв, 1950. К. Н. Афанасьев. Построение архитектурной формы древнерусскими зодчими. Автореферат докторской диссертации. М., 1954.

2) М. Е. Ващенко-Захарченко. История математики. Т. 1, Киев, 1883.


- 84 -


размеряли церковь златым поясом: «20 в ширину и 30 в длину, а 30 в высоту; стены с връхом 50» 1).

Но следует отметить, что кроме этих ценных данных, в рассказе Патерика дано почти полное описание процесса подготовки строительной площадки: выбор сухого возвышенного места, где не ложится утренняя роса, выравнивание площадки («долины») для обозначения на ней рвов («якоже ръвом подобно»), изготовление деревянного эталона в меру златого пояса («...древо бяше существом»), разметка сначала ширины, а затем и длины здания в определенных мерах, рытье рвов, и, наконец, «водружение корения», т. е. закладка каменного фундамента2).

Историки архитектуры никогда не обращали внимания на интереснейшие сведения о расчетной работе зодчего, содержащиеся в славянском «Сказании о Соломоне и Китоврасе», являющемся сказочной переработкой повествований о построении соломонова храма (XII в.).

Царю Соломону для начертания плана задуманного им храма понадобился мудрый кентавр — Китоврас.

В русском прикладном искусстве и архитектурной орнаментике изображения кентавра-Китовраса довольно часты . Следует упомянуть кентавров с жезлами на стенах Георгиевского собора в Юрьеве-Польском (1236 г.) и мудрого кентавра с пальцем у лба (жест размышления) на створке серебряного браслета XII—XIII вв. из так называемого Тверского клада 1906 года. Мудрый Китоврас изображен здесь в окружении трех стихий (воды, земли и воздуха) и представителей двух царств природы — животного (зверь) и растительного (плодоносящее древо)3) (рис. 1).

«Сказание о Соломоне и Китоврасе» сохранило нам древнерусское наименование архитектурного плана — «очертание»; Соломон говорит Китоврасу: «не на потребу тя приведох собе, но на упрос очертанию святая святых»4).



1) Киево-Печерский Патерик под ред. Д. Абрамовича. Киев, 1931, стр. 3. Последнее измерение «стены с връхом 50» затрудняло исследователей. По всей вероятности, здесь описана часть периметра лицевого (западного) фасада, определявшая основной объем здания: высота двух стен до закомар и ширина фасада. Таково по крайней мере соотношение частей в Спасском соборе 1036 г.

2) Там же, стр. 8 и 9. При закладке фундаментов в их основание были положены мощи тех святых, изображения которых предполагалось потом поместить на стенах церкви над этими местами. Это означает, что у зодчих был разработан заранее весь замысел здания, включая даже размещение живописных сюжетов.

3) Б. А. Рыбаков. Прикладное искусство и скульптура. История культуры древней Руси. Т. II, M.-Л., 1951, стр. 432, рис. 215, 1.

4) А. Н. Веселовский. Из истории литературного общения Востока и Запада. Славянские сказания о Соломоне и Китаврасе и западные легенды о Морольфе и Мерлине. СПб, 1872; Палея Толковая 1477 г. (воспроизведение Синодальной рукописи № 210). Вып. I. СПб, 1892; На Васильевских вратах 1336 г. рядом с Китоврасом помещен дом, внутри которого изображены человек, рисующий на листе, и строительные (?) инструменты. См. В. Н. Лазарев. Васильевские врата 1336 г., СА, XVIII, М., 1953, стр. 425-426, рис. 27. В сказаниях о царе Давиде рассказывается о получении им «образа церковного» и об изготовлении им для царя Соломона чертежа храма. См. В. А. Келтуяла. Курс истории русской литературы, ч. I, кн. I, СПб, 1913, стр. 190.


- 85 -

Самым важным в этом эпизоде является то, что Китоврас, зная заранее, что он призван царем для изготовления плана будущего храма, явился к нему с деревянными мерилами, эталонами каких-то мер: «Он же (Китоврас) умеря прут 4 локоть и вшед пред царя, поклонися и поверже пруты пред царем молча...»

 


Здесь для нас особенно интересно то, что главными инструментами архитектора, необходимыми ему для создания «очертания», являются деревянные мерила (описанные во множественном числе) по 4 локтя в каждом. Обращение к древнерусской метрологии показывает полную достоверность сообщений «Сказания»: во-первых, в древней Руси применялось одновременно несколько видов саженей, а во-вторых, каждая сажень подразделялась именно на 4 локтя; такое деление просуществовало до XVI в.

Очевидно, волшебный архитектор Китоврас был наделен автором сказания реальными принадлежностями русского зодчего в виде изготовленных из дерева саженей, подразделенных на 4 локтя.


- 86 -


Эти два упоминания в литературе XII—XIII вв. о начальной стадии постройки зданий — в Патерике и в «Сказании о Соломоне и Китоврасе» — одинаково говорят о значении установленных мер, их портативных эталонов и самого процесса размеривания «очертания» храма на выровненной «долине».

Все это заставляет нас с особым вниманием отнестись к вопросу о древнерусских мерах длины и их применению в архитектуре; это поможет раскрыть методы работы древних архитекторов. Некоторых зодчих мы знаем по именам, сохраненным летописями.

Единственное изображение, которое предположительно связывают с русским архитектором Петром, известным по летописи, обнаружено в башне Антоньева монастыря в Новгороде (рис. 2).

В 1949 г. мною была сделана попытка пересмотра русской средневековой метрологии в целях использования мер длины при анализе архитектурных сооружений1).

Основные выводы таковы:

1. В древней Руси с XI по XVII в. существовало семь видов саженей и локтей, бытовавших одновременно.

Наблюдения над русской метрологией показали, что очень мелких и дробных делений в древней Руси не применяли, а использовали многообразие мер, применяя, скажем, «локти» и «пяди» разных систем.

Древнерусские меры длины могут быть сведены в следующую таблицу:


Виды саженей

Сажень (в см)

Доли саженей

1/2

1/4 локоть

1/8 пядь

1/16

 Простая, прямая

152,76

76,38

38,18

19

9,5

 Мерная, маховая

176,4

88,2

44,1

22

11

 «Морская»

~ 183

91,5

45,7

22,8

11,4

 «Трубная»

~187

93,5

46,7

23,3

11,6

 «Сажень без чети»

197,2

98,6

49,6

24,8

12,4

 Косая, казенная

216

108

54

27

13,5

 Великая, косая

249,46

124,73

62,36

31,18

15,6


2. Известен ряд случаев, когда одно и то же лицо производило измерение одного и того же объекта одновременно разными видами саженей.

Так, при ремонте Софийского собора в Новгороде в XVII в. измерения велись двумя видами саженей: «А внутри главы кругом где окна — 12 сажен (по 152 см), а от Спасова образа ото лбу до моста церковного — 15 сажен мерных (по 176 см)»,

При постройке засечной черты в 1638 г. «валили вал в ширину 25 сажен косых а простых — 40 сажен»2).

Анализ архитектурных памятников XI—XV вв. позволил утверждать, что древнерусские зодчие широко применяли одновременное пользование двумя или даже тремя видами саженей3).



1) Б. А. Рыбаков. Русские системы мер длины XI—XV вв. СЭ, 1949, № 1.

Поводом к этой работе послужило открытие в Чернигове в 1946 г. части фундаментов Благовещенского собора 1186 г. Приложение метрологического анализа и использование аналогий позволили дать реконструкцию всего плана этого замечательного здания. (См. Б. О. Рибаков. Благовiщенська церква у Чернiговi 1186 р. за даними розкопок. Архiтектурнi пам'ятники, Киiв, 1950, рис. 63). Продолжение работ по исследованию фундаментов в 1947 г. полностью подтвердило первоначальную реконструкцию. (Там же, рис. 59).

2) Другие примеры см. в указ. статье Б. А. Рыбакова. «Русские системы мер...», стр. 72, 74, 78.

3) Там же, стр. 82-84.


- 87 -

3. Непонятное для нас одновременное пользование разными мерами длины объясняется заложенными в этих мерах при их создании строгими геометрическими соотношениями (рис. 3).

 


Геометрическая сопряженность древнерусских саженей особенно ясна в наименовании «прямой» и «косой» сажени. Оказалось, что прямая сажень есть сторона квадрата, а косая — его диагональ (216 = 152,7). Такое же соотношение существует между «мерной» и «великой» (косой) саженями: 249,4 = 176,4.

«Сажень без чети» оказалась искусственно созданной мерой, являв-


- 88 -

 


шейся диагональю половины квадрата, сторона которого равна мерной сажени1).

4. Графическим выражением этих двух систем мер длины (одной, основанной на «простой» сажени, и другой, основанной на «мерной» сажени) являются хорошо известные по древним изображениям «вавилоны», представляющие собой систему вписанных квадратов. Наименование «вавилоны» взято из русских источников XVII в. (см. рис. 3).

5. Дошедшие до нас изображения «вавилонов» (рис. 4) в основе своей являются схемой плана священного храма-зиккурата с его ступенями и лестницами, но почти все они далеки от точности и могли служить лишь каким-то символом, например, символом зодческой мудрости. Этот древний символ давно уже нашел отражение в играх, и нам известны игральные доски, воспроизводящие «вавилон» (игра «мельница»)2).

В последние годы в Новгороде и Пскове были найдены игральные доски XII—XIII вв., которые можно сопоставить с древнерусской игрой «тавлЪей» (от латинского tabula) (рис. 5).

6. Предпринятые мною в 1949 г. попытки применить описанные выше графики к анализу русской архитектуры дали интересные, но крайне ограниченные результаты; проследить полностью весь процесс создания плана сооружения древнерусским зодчим мне тогда не удалось.

 



1) Проверка выдвинутых мною принципов геометрической соподчиненности мер и одновременного употребления разных мер при постройке одного здания, произведенная В. Л. Ворониной на примере архитектуры Средней Азии, показала их правильность. В. Л. Воронина. К вопросу о древней метрологии Средней Азии. КСИИМК, XXXIX, 1951, стр. 66.

2) Б. А. Рыбаков. Русские системы мер..., стр. 89 и 91, рис. 4, фиг. 11.


- 89 -


Новые находки загадочных чертежей — «вавилонов» — на Таманском городище (древней Тмутаракани) и Старо-Рязанском городище, относящиеся к IX—XII вв., позволяют значительно углубить анализ этих чертежей и установить их тесную связь с процессом архитектурного расчета.


На территории Тмутаракани в центральной части города за время работ Таманской экспедиции (1952—1955) нами было найдено пять «вавилонов». Все они связаны с определенными зданиями.


- 90 -

1. В фундаментах шестигранного здания хазарского периода (IX — начало X в.), построенных из камня и кирпича закавказского типа, найден обломок глиняной плиты, на которую в сыром виде нанесли чертеж, состоящий из вписанных прямоугольников (рис. 6).

2-3. В фундаментах небольшого крестообразного в плане храма середины X в., расположенного на той же центральной городской площади, найден кусок черепицы X в., на котором с обеих сторон нацарапаны «вавилоны»; на одной — три вписанных квадрата, а на другой — три вписанных прямоугольника (рис. 7 и 8).

4. Среди остатков каменотесной мастерской, созданной в процессе постройки храма Мстиславом Владимировичем Тмутараканским в 1023 г., была найдена расколотая плита розового новороссийского песчаника с начертанным на ней квадратным «вавилоном» (рис. 9). Этот розовый песчаник служил для самых различных частей здания: из него тесались плиты для вымостки пола, устои для алтарной преграды, резались орнаментальные вставки для тимпанов и т. п.

 


Чертеж врезан четко и определенно; сторона наибольшего квадрата равна 19 см, т. е. русской «малой пяди» (1/8 прямой сажени). Все это может говорить в пользу практического применения данного чертежа тмутараканскими каменотесами при определении размеров тех или иных деталей.


- 91 -

 

5. В этой же каменотесной мастерской найдено горло амфоры XI в. со схематическим изображением трех вписанных квадратов (рис. 10). Единственное значение, которое мог иметь этот знак в XI в., это служить тамгой артели строителей храма; как знак собственности строителей или каменотесов он и попал на сосуд для вина.

Как видим, все тмутараканские находки связаны с определенными архитектурными сооружениями, и, что особенно важно отметить, все они


- 92 -

стратиграфически залегают на уровне фундаментов, на уровне строительной «долины».

В 1952 г. прямоугольный «вавилон» был найден в Болгарии в Преславе на надгробной плите вельможи Мостича, датируемой 950—960-ми годами (рис. 11)1).

Одной из важнейших находок является открытая в 1948 г. в Старой Рязани глиняная плита с самым точным из всех известных до сих пор чертежей (рис. 12)2).

Плита с чертежей найдена на уровне пола в западном притворе собора, названного А. Л. Монгайтом Борисоглебским (хотя ввиду полного тождества плана этого здания с Успенской церковью в Чернигове, его правильнее было бы назвать тоже Успенским)3). Дата здания — середина XII в.

Из перечисленных семи новых находок особенно важны для нас, во-первых, таманская черепица X в. с двумя чертежами и, во-вторых, старорязанская плита. Тмутараканская черепица показала, что могут быть «вавилоны» двух видов — квадратные и прямоугольные. Начерчены они, небрежно и служить непосредственно «рабочими чертежами», разумеется, не могли. Однако, несмотря на неточности выполнения, здесь легко угадываются те геометрические фигуры, которые древний тмутараканец стремился воспроизвести на глаз. Наложение точного чертежа, выполненного циркулем и угольником на эти рисунки, убеждает в существовании определенных закономерностей. Не подлежит сомнению, что один из рисунков на черепице изображает систему трех вписанных квадратов; середины сторон всех трех квадратов соответственно соединены четырьмя линиями, перпендикулярными этим сторонам («лестницы зиккурата»).

Второй рисунок, сделанный более тщательно, представляет собой три вписанных прямоугольника, размеры сторон которых находятся в зависимости от размеров первой фигуры: длинная сторона большого (внешнего) прямоугольника равна стороне большого квадрата, а его короткая, боковая сторона равна стороне среднего квадрата (или, что одно и то же, половине диагонали большого квадрата). Два внутренних прямоугольника второй фигуры дают следующие закономерности: длинная сторона каждого из них равна короткой стороне следующего по величине (большего) прямоугольника, середины сторон также соединены линиями. Геометрически построить такую фигуру, как три вписанных прямоугольника с отношением длинных сторон к коротким как а: (a/2)*можно только при помощи вспомогательного чертежа в виде трех вписанных квадратов.

По счастью, этот вспомогательный чертеж был сделан на этом же самом куске черепицы.

«Вавилоны» тмутараканской церкви середины X в. мы должны рассматривать как два сопряженных между собой чертежа: три вписанных квадрата были вспомогательным чертежом (выполненным более небрежно), необходимым для построения второго чертежа, состоящего из прямоугольников.

Каким же целям должен был служить этот сложный чертеж, ради чего создавалась такая геометрическая композиция?



1) Ст. Станчев, В. Иванова (и др.). Надписът на чъргубиля Мостич. София, 1955, стр. 5, 15, 40 (рис. 16), 61. «Чъргубиль» — крупный придворный чин при болгарских царях Симеоне и Петре. Имя этого вельможи В. И. Иванова связывает со словом «мост» (стр. 61). Наличие на его надгробии символа зодческой мудрости не может ли быть истолковано как указание на должность придворного архитектора?

2) Приношу благодарность А. Л. Монгайту, предоставившему мне для публикации рисунок этой плитки. Упоминание о ней см. А. Л. Монгайт. Старая Рязань. МИА, № 49, 1955, стр. 82.

3) Г. Ф. Корзухина-Воронина. Рязань в сложении архитектурных форм XII—XIII вв. Сб. «Бюро по делам аспирантов», ГАИМК, вып. I, Л., 1929, стр. 77.


- 93 -

 


Ответить на эти вопросы можно лишь, ознакомившись с математическими свойствами этого чертежа. Оказывается, что стороны прямоугольников и расстояния между узловыми точками чертежа (углами и пересечениями линий) таят в себе множество различных соотношений, которые известны в архитектуре и прикладной геометрии средневековья.

Обозначим все точки нашей фигуры буквами русского алфавита (рис. 13) и перечислим соотношения линий. В основе фигуры лежат шесть пар прямых линий (сторон прямоугольников), разделенных пополам, и две пары пересекающих их линий, которые разделяются на две неравные части каждая. Если же учитывать не только изображенные на чертеже линии, но и те, которые могут быть проведены от точки к точке, то количество линий возрастет до 42.

Все линии «вавилона» можно подразделить на три группы.

1. Часть линий является долями длинных сторон ВД — АЖ внешнего прямоугольника:

ВГ = ГД = ВД/2 =АЗ = ЗЖ = АЖ/2= ЛИ=НП = УХ = СЧ;

БТ = ЦЕ =ВД/2=ВГ/2 и т. д.

2. Другие линии представляют собой фракции диагонали квадрата, сторона которого равна ВД или АЖ:

АВ=ДЖ=ЛН=ИП=(ВД)/2=(АЖ)/2;

СУ=ХЧ=АВ/2=ДЖ/2=(ВД)/4=(АЖ)/4;

ГФ=ШЖ=АВ/4=ДЖ/4=СУ/2=ХЦ/2=(ХФ)/2=(БТ)/2=(УХ)/4=(ВД)/8 и т.д.

3. Третья группа самых коротких линий тоже представляет сочетание сторон и диагоналей квадрата; эти линии получены как разность между длинными и короткими сторонами прямоугольников.

БК=ОЕ; ГМ=РЗ=КТ=ЦО=(БК)/2=ОЕ)/2;

ФМ=ШР=БК/2=ЩУ/2=(ГМ)/2 и т.д.

Если для простоты обозначить длинную сторону через А, то при помощи этой величины мы сможем выразить все линии «вавилона». Одни из них будут представлять последовательное деление на 2: А; А/2; А/4, другие


- 94 -


могут быть представлены иррационально: (А)/2; (А)/4; (А)/8, третьи являются разностью: А/2 - (А)/4; А/4 - (А)/4; А/4 - (А)/8 (см. рис. 13 справа).

Линии «вавилона» образуют несколько пропорциональных рядов. Вот, например, один из них: МФ/МГ = МГ/БК = ГФ/БТ = УС/УХ = АВ/БД.

Среди линий «вавилона» нетрудно подыскать свыше десятка отношений, очень близких к «золотому сечению»: м/М = М/(м + М). Приближенность решений определяется только при математическом анализе, но практически она неуловима. Наиболее точным является отношение: ВК/АЛ = АЛ/(ВК + АЛ) = АЛ/БД. Здесь суммой двух отрезков является длинная сторона прямоугольника А.

Погрешность равна 0,003 этой стороны; при практических построениях она была мало заметна.

При помощи изучаемого нами графика можно быстро и с достаточной для практических целей точностью решить все важнейшие задачи средневековых геометров. Упомянутый выше Абуль-Вафа (940—998 гг.) посвятил специальную книгу задачам на построение равновеликих фигур. Со всей строгостью настоящего ученого обрушился он на «методы, применяемые рабочими, не основанные на каких-либо началах», и дал взамен их математически безупречные, но необычайно сложные и громоздкие решения этих задач, руководствуясь «началами» Эвклида. Однако не все задачи, интересовавшие тогдашних практиков, могли быть решены строго математически — такова, например, была древняя задача о нахождении геометрическим путем квадрата, равновеликого кругу, задача «квадратуры круга»1).

Современный Абуль-Вафе тмутараканский график из трех вписанных прямоугольников позволяет с очень большой степенью точности (хотя и не всегда теоретически верно) почти моментально решать все подобные задачи, включая и «квадратуру круга».

Рассмотрим несколько примеров, взяв за основу квадрат, сторона которого равна длинной стороне внешнего прямоугольника «вавилона» (А).

1. Удвоение квадрата (рис. 14):

Сторона удвоенного квадрата равна удвоенной боковой стороне «вавилона» (т. е. 2 АВ или 2 ДЖ).

2. Построение двух равных квадратов, сумма площадей которых равна площади основного квадрата:

Сторона каждого малого квадрата равна АВ или ДЖ.

3. Построение трех квадратов на тех же условиях:
Удвоенная линия БЛ (или три других, ей соответствующих — БИ, БН, БП) является стороной искомого квадрата.

4. Построение равностороннего треугольника, равновеликого квадрату:
сторона треугольника равна удвоенной линии АЧ. Высота его будет равна удвоенной линии ТН.

5. Построение правильного шестиугольника, равновеликого квадрату:
Стороной шестиугольника будет больший отрезок стороны квадрата, разделенной в «золотом сечении», т. е. линия АЛ.

6. Построение квадрата, равновеликого кругу («квадратура круга»):



1) Древние египтяне очень хитро решили эту задачу, вычислив ее арифметически и подобрав соответствующие меры длины. Египетский локоть в 46 см — это сторона квадрата, а царский локоть в 52 см — диаметр круга 46/52 = /2 = 0,886. Г. Н. Беляев. О древних и нынешних русских мерах протяжения и веса. Seminarium Kondakovianum. Т. I, Прага, 1927, стр. 258.


 

- 96 -

Примем диаметр окружности равным большой стороне «вавилона». Сторона искомого квадрата будет равна сумме боковой стороны «вавилона» и линии ГФ (поперечной линии, соединяющей длинные стороны всех трех прямоугольников). Погрешность здесь будет очень невелика и практически почти неощутима — 0,0023 диаметра; ошибки в задачах 3 и 5 тоже очень малы и не превышают 0,005-0,003. Наименее точно решение задачи 4 (ошибка равна 0,08). Задачи 1, 2 решаются точно.

Как видим, для средневековых практиков, осужденных Абуль-Вафой, все подобные задачи решались поразительно просто — располагая «вавилоном» в определенную меру (например, с большой стороной в «локоть»), мастера и архитекторы должны были только знать, который из 42 размеров этого графика нужно взять в качестве стороны искомой фигуры.

Зная свойства «вавилона», можно было быстро, не производя ни расчетов, ни геометрических построений, сразу же разделить локоть в отношении «золотого сечения», найти фигуры, равновеликие квадратному локтю, дать несколько пропорциональных рядов, дать графическое изображение ряда иррациональных величин: а, a, a, a, a...

Неудивительно, что этот математически универсальный замечательный график мог стать еще в глубокой вавилонской древности символом зодческой мудрости, «хытрости храмоздательской».

* * *

Перечисленными выше примерами далеко не исчерпываются расчетные возможности прямоугольного «вавилона».

Обращение к древнерусским мерам длины открывает нам еще одну область применения нашего графика.

Возьмем за основу ту меру, которую сами древнерусские люди считали основной и называли «мерной саженью». Размер ее колеблется по разным данным между 176,0-176,8 см1).

Примем среднюю величину в 176,4 см и построим квадрат, со стороной в мерную сажень, а на основе квадрата — прямоугольный «вавилон», длинная сторона которого будет, как известно, тоже равна мерной сажени в 176,4 см.

Все виды древнерусских саженей займут положение основных геометрических линий этой фигуры (рис. 15):

Великая сажень (249,46 см) — диагональ квадрата

«Сажень без чети» (197,21 см) — диагональ половины квадрата

Мерная сажень (176,4 см) — сторона квадрата

Косая сажень (216,04 см) — диагональ «вавилона»

Прямая сажень (152,76 см) — диагональ короткой половины «вавилона»

«Трубная сажень» (187,08 см) — диагональ длинной половины «вавилона»

Половина великой сажени (124,73 см) — короткая сторона «вавилона».

Только так называемая «морская сажень» не занимает здесь основного положения и может быть приурочена к линии АН (184 см).

Все стороны внутренних прямоугольников «вавилона» являются здесь фракциями двух саженей — мерной и великой.

Пересекающие линии «вавилона» («лестницы зиккурата») также оказываются выраженными в мерах длины: Линии БТ и ЦЕ равны локтю (44,1 см), равны 1/4 мерной сажени. Линии ГФ и ШЗ равны 1/2 локтя «смоленского» (31,18 см), равны 1/8 великой сажени.1)



1) Б. А. Рыбаков. Русские системы мер..., стр. 74.


- 97 -


Таким образом, для построения такого «вавилона» нужно иметь только два «прута по четыре локтя», из которых один равен стороне квадрата, а другой — его диагонали.

Геометрическая сопряженность всех древнерусских мер длины, связанность их определенной общностью, принадлежностью к единой системе становится особенно ясной тогда, когда мы рассмотрим их с точки зрения «метода построения по системе диагоналей», широко применявшегося еще в архитектуре Древнего царства Египта1).

Если мы построим квадрат, сторона которого равна половине мерной сажени, то диагональ его будет равна половине великой сажени. Отложим диагональ на продолжении двух сторон квадрата, соединим точки и получим прямоугольник со сторонами А и А.

Диагональ его будет равна А = прямой сажени.

Продолжив построение по этому «принципу диагоналей» новых прямоугольников, мы получим последовательно (рис. 16):

A = 152,76 — прямая сажень

A = 176,4 — мерная сажень

A = 197,21 — «сажень без чети»

А= 216,04 — косая сажень

А = 249,46 — великая сажень

Следовательно, основной принцип архитектурных пропорций древней Руси был заложен в самой системе мер длины. Мы не можем счи-



1) В. Н. Владимиров. Пропорции в египетской архитектуре. Всеобщая история архитектуры. Т. I, M., 1944, стр. 81, 83, рис. 2.


- 98 -

 


тать их исключительно русскими, так как большинство этих мер, легко воспроизводимых человеком (размах рук, поднятие руки и т. п.), было распространено и у других народов.

Возможно, что именно их геометрическая сопряженность и позволила им сохраниться на Руси в таком полном комплекте. Одна мера была основной («мерная сажень»), а другие были геометрическими производными от нее и могли служить при тех или иных пропорциональных расчетах1).

Звеном, связывающим символические изображения «вавилонов» с конкретной архитектурной действительностью, является драгоценная находка в Старой Рязани.

На глиняной плите размером 25,9*18 см аккуратно и точно нанесены три прямоугольника разных размеров. Один внутри другого, но так, что одна из боковых сторон каждого из них опирается на одну общую для всех прямую линию.

Вся фигура имеет вид как бы трех букв П, написанных одна в другой и опирающихся на общую черту; над верхним П начерчена небольшая дужка. Следует особо отметить, что человек, исполнявший этот чертеж, был очень тщателен и стремился нанести линии с максимальной точностью, соблюдая их параллельность и правильность прямых углов.



1) Некоторые историки архитектуры прядают большое значение в пропорциональных расчетах делению окружности на 10 частей (например: Э. Мессель. Пропорции в античности и в средние века. М., 1936). Не присоединяясь к этим взглядам, я отмечу лишь, что древнерусские сажени и локти, представляющие определенные отрезки «вавилона», позволяли очень просто найти необходимый для деления окружности на 10 частей размер хорды с очень незначительной погрешностью. Для окружности, диаметр которой равен мерной сажени, такой хордой будет 1/4 косой сажени — локоть в 54 см. В общей форме это может быть выражено так: для деления окружности на. 10 частей достаточно взять 1/4 диагонали «вавилона», сторона которого равна диаметру окружности. Отмечу еще одно направление взаимных связей русских мер: высота равностороннего треугольника со стороной в мерную сажень равна прямой сажени, а со стороной в великую сажень — косой сажени.


- 99 -

 


Анализ рязанского чертежа убеждает в том, что здесь перед нами отобранные для каких-то целей линии «вавилона» (рис. 17).

Размеры того «вавилона», который послужил основой для чертежа, почти совпадают с размерами самой плиты, а этот размер в свою очередь является одним из самых ходовых, самых распространенных форматов древнерусского кирпича1).

Устойчивость формата 25*18 см и в то же время несовпадение его с древнерусскими мерами заставляет нас поискать основу его за пределами локтей и пядей.

Поиски направляют нас к уже известному нам «вавилону» со стороной в мерную сажень. Как выяснено выше, все древнерусские меры укладываются в этот график. Оказалось, что в него укладывается и интересующий нас распространенный в XII в. формат кирпича: длинная сторона кирпича равна большему отрезку поперечной линии БТ (линии БК), а короткая сторона кирпича равна меньшему отрезку этой линии (линии КТ) (см. рис. 13).

Другими словами, если в «вавилоне» со стороной в 176,4 см мы продолжим линии среднего по величине прямоугольника до пересечения их со сторонами наибольшего прямоугольника, то по углам «вавилона» мы получим маленькие прямоугольники со сторонами 25,835 см и 18,265 см, т. е. соответствующие как ходовому формату русского кирпича, так и размерам старорязанской плиты с чертежом (рис. 15 прав. нижний угол).

Все линии старорязанского чертежа взяты из «вавилона», длинная сторона которого — 25,835, а короткая — 18,265 см, т. е. они находятся в определенном гео-



1) В той самой Успенской церкви, где найден чертеж, основным размером кирпича является 26*18,5*5; 25*18*4,5 см. (См. А. Л. Монгайт. ук. соч., стр. 79). То же самое мы встречаем и в двойнике этой церкви, вернее, образце ее — в Успенской церкви Елецкого монастыря в Чернигове.


- 100 -

метрическом соотношении с основной русской мерой — мерной саженью1) (рис. 17).

Степень точности рязанского чертежа ясна из следующей таблицы, где фактические размеры сопоставлены с размерами «вавилона», вычисленными алгебраически с точностью до трех знаков.


Рязанский чертеж

Вычисленные величины

Обозначение линий на «вавилоне»

Наименование линий

Длина в см

F

G

N

Q

R

S

Q-R

R-S

F-G

G-N

21,4

16,9-17

12,9-13

15,8

10,5-10,7

7,5

3,8

3,8

2,6

1,8

21,413

16,867

12,917

15,811

10,706

7,485

3,785

3,785

2,674

1,892

ТД, ТЖ, ЦВ, АЦ

ТП, ТН, ИЦ, ЛЦ

ВГ, ГД, A3, ЛЦ ЗД, ЛИ, ПП, УХ, СЧ

БГ, БЗ, ГЕ, ЕЗ, СХ, УП

ТД/2 и т.п.

БЛ, БИ, ЕН, ЕП


БК, ОЕ

ГМ, РЗ, КТ, ЦО

МФ, ШР


В результате проведенного сопоставления мы можем утверждать, что происхождение всех величин рязанского чертежа установлено — они получены при помощи графика из трех прямоугольников, являющегося в свою очередь производным от мерной сажени в 176,4 см.

По месту находки рязанского чертежа — в строительном горизонте здания XII в. — мы можем считать его автора причастным к строительству.

В отличие от всех известных нам находок «вавилонов», являющихся лишь изображениями графика (порой очень приблизительными), рязанскую плиту мы вправе назвать точным чертежом, на который чертежник счел нужным перенести только шесть линий из всего многообразия линий «вавилона».

Математические свойства их таковы:

1. Линия F. Если построить «вавилон» с основанием, равным линии F, то диагональ его будет равна стороне исходного «вавилона» — 25,835 см, линия R = F/2

2. Линия Q делит сторону «вавилона» в отношении «золотого сечения». Погрешность — около 0,017.

3. Линия S уже известна нам по задаче о превращении квадрата в три равновеликих ему квадрата.

4. Линия G тоже известна нам по задаче о построении равновеликого треугольника.

5. Линия N является половиной стороны «вавилона» в 25,8 см.

Как видим, все линии отобраны рязанским зодчим с определенным смыслом.

Каков же был практический смысл подобного отбора?

Естественней всего обратиться к мелким архитектурным деталям, для расчета которых мог быть нужен тот или иной геометрический расчет.

К сожалению, в Успенской церкви Старорязанского городища, кроме обломков лекального кирпича, от аркатурного пояса ничего не сохранилось.

На помощь нам приходит двойник рязанской церкви — Успенская церковь Елецкого монастыря в Чернигове, построенная в одно время



1) Следует отметить только одно несовпадение — левая сторона наибольшего прямоугольника меньше правой на 0,8 см. Возможно, что это несовпадение — результат дефекта плиты, на которой есть трещины (рис. 12).


- 101 -

с рязанской. Чернигов и Рязань составляли тогда единую епархию, и одна из черниговских епископов середины XII в. построил, очевидно, церкви в черниговском монастыре и в Старой Рязани. У этих двух зданий одинаковы все размеры, одинаков план, одинаково применялось сочетание красного и желтого кирпича, кирпич штамповался одинаковыми клеймами; обе церкви имеют одинаковые крещальни для новообращенных язычников.


Пожалуй, во всей древнерусской архитектуре трудно найти два здания, более похожие друг на друга, чем рязанская и черниговская Успенские церкви.

Поэтому за поисками архитектурных деталей, которые мы могли бы сравнивать с рязанским чертежом, мы обратимся к Елецкой церкви в Чернигове1).

Стены этого стройного здания украшены только пилястрами с полуколоннами и белокаменным аркатурным поясом, расчленявшим стены по горизонтали. Белокаменные арочки опирались на белокаменные консоли, для заполнения арок и их разветвлений применялись керамические вставки в виде полукругов и сферических треугольников (рис. 18 и 20).

Весь аркатурный пояс представляет собой продуманное гармоничное украшение здания, пронизанное отношениями «золотого сечения» (например, внутренняя высота арки и ширина консоли; расстояние между консолями и высота укладки треугольников; высота фриза до поребрика и радиус керамического полукружия и т. д.).



1) Iполiт Моргилевський. Успенська церква Елецького моластиря в Черниговi. Чернигiв i Пiвнiчне Левобережжя, Киiв, 1928; Г. Ф. Корзухина-Воронина. ук. соч., стр. 77; Б. А. Рыбаков. Древности Чернигова, МИА, № 11, 1949, стр. 83-89, рис. 46, 47, 51.


- 102 -

 


Чувствуется, что при создании аркатуры черниговский зодчий тщательно математически рассчитывал все ее детали.

Сопоставим аркатурный пояс Елецкой церкви с чертежей из развалин старорязанской церкви.

Линия Q, отмеченная на чертеже полукругом, оказывается равной радиусу керамического полукружия. Внутренний радиус арки равен линии G, а внешний радиус — линии F.

Консоли построены при помощи линий R и 5 и расстояний между линиями F — N и R — S.

Расстояние от консолей до поребрика равно стороне «вавилона» (2N).

Фриз из кирпичей построен при помощи линии S и расстояния RS.

Расстояние между двумя полукружьями равно линии N; между консолями — 2G.

Обнаружив такое поразительное совпадение, я вычертил все детали аркатурного пояса в натуральную величину, пользуясь только линиями рязанского чертежа, и кальку с полученного рисунка наложил на рисунок подлинного елецкого аркатурного пояса. Совпадение получилось полное; даже строительные допуски не исказили общего сходства (рис. 19, 20)1).

Для построения всего аркатурного пояса оказалось достаточно только тех линий, которые были отобраны на рязанском чертеже, но зато все эти линии и все расстояния между ними оказались использованными при построении аркатуры в натуральную величину.

Это позволяет сделать очень важный вывод: приступая к созданию единственной декоративной детали собора, аркатурного пояса, русский зодчий середины XII в. составил (на основе «мерной сажени») специальный график — «вавилон» и, зная математические свойства этой фигуры, отобрал несколько таких линий, которые позволили бы ему создать наиболее гармоничный рисунок аркатуры. Необходимость перенесения отобранных линий на глиняную плиту, создание прочного и портативного эталона вызывались тем, что вычерчиванием рисунка будущей аркатуры задача зодчего не ограничивалась. Для всего собора нужно было около



1) Обмерный чертеж аркатурного пояса Елецкой церкви опубликован: «Памятники архитектуры X—XV вв. Чертежи и фотографии», вып. I, M., 1953, табл. 10.


- 103 -

 


200 керамических полукружий, 200 белокаменных консолей, 400 белокаменных блоков (дуги по 90°) для арок и т. д.

Эти детали нужно было заказывать и мастерам — «плинфотворителям», делавшим кирпичи, и мастерам-каменщикам, и вот для них, для этих мастеров и был необходим эталон только тех размеров, которые действительно были нужны для практической разметки деталей.

Зодчий был предусмотрителен и заранее разделил линии между каменщиками и плинфотворителями: от мастера кирпичных дел требовалось главным образом изготовление полукружий — все остальные размеры были нужны каменщикам, и зодчий отметил на своем чертеже-эталоне, полукруглой дужкой именно тот размер, который мастер-керамист должен был взять в качестве радиуса порученных ему полукружий.

* * *

Учитывая особенности средневекового математического мышления, попытаемся проникнуть в методику архитектурных расчетов.

Приступая к этому, мы должны помнить, что древнерусский зодчий был не только художником, но и строителем-практиком, которому приходилось переводить свои художественные замыслы на язык, понятный всем исполнителям. Еще до начала земляных работ нужно было заказать определенное количество кирпичей определенных форматов, нужно было учесть, сколько кирпичей и каких именно ляжет в той или иной стене или пилястре. Создав в своем воображении (а может быть, нарисовав, вылепив из воска или глины) общий вид сооружения, обдумав пропорции его частей, зодчий должен был подчинить все размеры, от общих габаритов до размера строительных материалов, какой-то единой системе.

Вероятно, поэтому мы встречаем в древней Руси кирпичи и декоративные плитки таких форматов, которые получают объяснение только при знакомстве с малыми «вавилонами», производными от трех основных видов саженей (мерной, прямой или косой)1).



1) Так, например, майоликовые плитки Белгорода были изготовлены при помощи такого же «вавилона», каким пользовались при создании рязанского аркатурного пояса. Мы встречаем здесь размеры 25,8*25,8; 25,8*25,9; 26*26 см (промеры А. Кирпичникова). Часты размеры, совпадающие с линиями F, G, R, S, N рязанского чертежа, но встречаются и другие размеры, взятые с того же «вавилона», но не использованные рязанцем.


- 104 -

 


Важным моментом в работе зодчего было производство «очертания», т. е, плана, чертившегося непосредственно на земле, на выровненной «долине»1).

Средневековое руководство начала XII в., написанное французским монахом Гуго, повествует о процессе вычерчивания Ноева ковчега (рис.21)2).

В центре чертежа изображается два вписанных квадрата; внутренний делят на четыре малых квадрата. Затем продолжают стороны этого квадрата (названного в тексте «локтем») в четырех направлениях для получения длины и ширины ковчега. К сожалению, изложение процесса вычерчивания написано автором очень сбивчиво и неясно, да и сам мифический объект изображения не способствовал внесению ясности. Думаю, что Гуго хотел в своем сочинении передать читателям технику пользования квадратным «вавилоном», но так как на Западе она была неизвестна, то он и не смог по-настоящему об этом рассказать. Так, например, осталось неясным, для какой цели внутренний квадрат («локоть») делится на четыре части. Для чего понадобилось продолжать стороны «локтя» в четырех направлениях, тогда как в тексте говорится лишь о двух?3)

По всей вероятности, сам автор плохо знал ту зодческую мудрость, которую собирался пересказать другим. Может быть, после крестового похода появились какие-то сведения о восточных архитектурных приемах, основанных на системе вписанных квадратов, но сочинение Гуго полностью их не раскрывает. Труд «О таинственном значении ноева ковчега» важен для нас указанием на то, что чертежник прежде всего чертил в центре будущего сооружения систему квадратов, пересеченных линиями, близкую к изучаемым нами «вавилонам».

Предпринятые мною в 1947 г. попытки раскрыть методику работы древнерусских зодчих при помощи квадратных «вавилонов» не увенчались успехом, но теперь после тмутараканской и рязанской находок оказалось возможным определить роль прямоугольных «вавилонов» и входящих в их систему мер длины в создании «очертания» русских церквей.

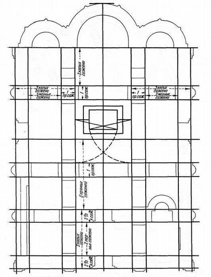
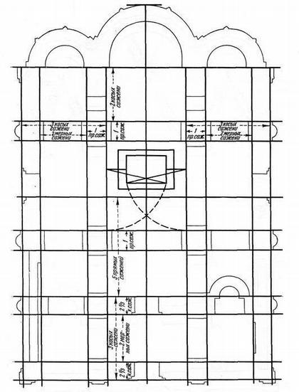
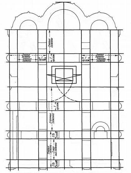
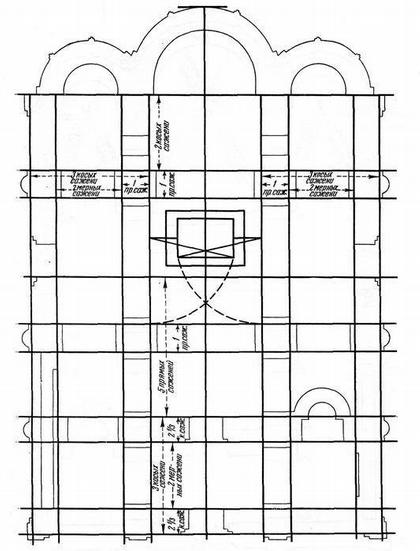
Возьмем в качестве примера ту самую Успенскую церковь Елецкого монастыря, относительно аркатурного пояса которой нам уже стало известно, что он рассчитывался при помощи «вавилона» — отборочного рабочего графика.

Весь процесс разбивки плана-«очертания» можно представить себе так (рис. 22а, 22б, 23).

1. Вдоль строительной площадки прочерчивалась осевая линия Запад — Восток, определявшая направление церкви.

За Восток принималась точка восхода солнца в день закладки здания, обычно совпадавший с праздником в честь патрона данного храма.



1) Глагол «чертить» в древности означал «бороздить землю». Отсюда «чертадло» (чересло) — плужный нож, «черта» — борозда и т. д.

2) В. П. Зубов. К вопросу о роли чертежей в строительной практике западноевропейского средневековья. Тр. Ин-та истории естествознания и техники. Т. VII, М., 1956, стр. 233-234, рис. 1.

3) Там же, стр. 235.


- 105 -

2. Примерно в середине строительной площадки чертился прямоугольный «вавилон», длинная сторона которого (ВД) должна была определить диаметр купола и расстояние между восточными подкупольными столбами. В большинстве русских церквей это расстояние слагалось из 2 или 4 саженей. Построение «вавилона» облегчалось тем, что его длинные и короткие стороны определялись двумя видами саженей (рис. 226). Следовательно, зодчий для построения «вавилона» должен был, как Китоврас в легенде, иметь при себе несколько «прутов» по 4 локтя.

Для удобства дальнейших отсчетов, вероятно, вычерчивались продолжения всех сторон «вавилона».

3. Свой художественный замысел и заранее продуманные соотношения частей здания зодчий в процессе практической работы переводил на язык общедоступных саженей и локтей, делая замысел понятным всем своим помощникам.

После вычерчивания на земле «вавилона», очевидно, определялись в натуре же общие габариты здания (рис. 22а).

В Елецкой церкви это было сделано так:

а) от «вавилона» на восток было отсчитано ровно 6 мерных саженей до крайнего выступа средней апсиды;

б) на север и на юг было отложено по 3 косых сажени — это определило внешние линии стен;

в) от «вавилона» (на этот раз от его западной линии АЖ) на запад отсчитано 5 прямых саженей до стены, отделяющей нартекс;

г) далее на запад отложено еще 3 косых сажени, что дало внешнюю линию западного фасада.

4. Построение подкупольного прямоугольника производилось при помощи линий «вавилона» БЧ и ЕС. Из точек Б и С радиусом, равным указанным линиям (длина их — 5 м 70 см) отмерено расстояние на продолжение коротких сторон «вавилона».

5. Подкупольные столбы имели в основе квадрат со стороной в прямую сажень и выступы, равные 1/4 этой сажени (локоть в 38 см). В ширину столбов были проведены полосы вдоль здания и поперек, чтобы отметить ширину других столбов и пилястр.

6. Ширина боковых нефов и толщина северной и южной стены определялись так:

а) от северной грани северного столба (и от южной грани южного) отсчитывались 2 мерные сажени — это и была ширина нефов, середина каждого нефа определялась очень удобно — на сажень от стены;

б) толщина стены определялась разностью: из трех косых саженей нужно вычесть ширину нефа и ширину столба — получается 143 см (7/8 прямой сажени), эта толщина сохраняется для всех внешних стен и для стены нартекеа.

7. Средняя апсида строилась при помощи трехцентровых дуг. Центр апсиды определялся засечками от восточных углов «вавилона» радиусом в 4 1/2 прямых саженей (рис. 23).

Через полученный центр прочерчивались продолжения линий засечек и из этого центра чертилась та часть дуги апсиды, которая умещалась между продолженными линиями. Радиус внешней дуги — 2 1/2 мерных сажени, а внутренней — 2 прямых сажени. Для вычерчивания боковых ветвей этих дуг применялись два вспомогательных центра (рис. 23).

8. Центры боковых апсид определялись тоже засечками; радиус — 3 прямых сажени. Так же применялся дополнительный центр (рис. 23).

9. Алтарное пространство до апсиды равно (но не очень точно) двум косым саженям.

10. Крещальня построена как миниатюрная церковка; ее алтарное пространство в ширину равно 1 косой сажени, а в глубину 2 1/2 локтям (54 см). Радиусы — 1 прямая сажень и 1/2 прямая сажени.


- 106 -

 


11. Пилястры с полуколоннами на внешних стенах построены так: радиус полуколонны — локоть в 44 см. Угловые плоские пилястры на юге и на севере равны 1/2 косой сажени, а на западном фасаде — 1/2 мерной сажени.

12. Северный и южный порталы —1 мерная сажень. Западный портал — 1 прямая сажень 1 локоть (рис. 23 и 24).

Вычерченный на основе перечисленных выше данных план церкви полностью совпадает с подлинным обмерным планом, что позволяет считать расшифровку метода зодчего правильной1) (см. рис. 23 и 24).



1) Пользование геометрическими соотношениями в их наиболее удобной форме — в форме мер длины — прослеживается и на ряде других архитектурных памятников. Елецкая церковь разобрана здесь лишь как наиболее четкий пример.


- 107 -


«Вавилон» был ядром плана, от него велись все первоначальные отсчеты, его линии определяли подкупольный прямоугольник, на продолжении западной стороны его находилась линия порталов. Но все дальнейшие работы велись зодчим при помощи мерных прутьев, ходовых русских мер длины (в которых был построен и «вавилон»).

Геометрические свойства русских мер (синтезом которых был прямоугольный «вавилон») позволяли зодчему, знавшему все секреты своеобразных математических графиков, переводить абстрактные пропорциональные отношения в конкретные меры, вещественным олицетворением которых были деревянные эталоны — сажени. Именно геометрическая сопряженность русских саженей и локтей, наличие системы мер и обусловило длительное существование на протяжении шести веков всех видов саженей и одновременное употребление их при одном и том же измерении. То, что должно удивлять современного архитектора, было в порядке вещей у средневековых мастеров.


- 108 -


Средневековая любовь к мистике и символике должна была содействовать консервации «вавилонов», пoпавших в Восточную Европу в IX веке, вероятно, с Востока. Свои расчетные таблицы — «вавилоны» (своего рода логарифмические линейки) и их изображения древние зодчие закапывали в основания построенных ими зданий.

В связи с проблемой архитектурного чертежа, предварявшего постройку здания или копировавшего уже построенное, совершенно исключительный интерес представляют схематические изображения храмов


- 109 -

 


на миниатюрах знаменитого «Изборника» князя Святослава Ярославича 1073 г.1)

Возьмем миниатюру на листе 3-м. Почти во весь лист здесь изображен вертикальный разрез трехнефного пятиглавого храма, близкого по типу к Спасскому собору 1036 г. в Чернигове; внутри здания — «собор святителей». В архитектурной части это изображение является не рисунком, а точным чертежом, выполненным с помощью линейки и циркуля, но без угольника. Следы ножек циркуля хорошо видны на подлиннике (а некоторые даже на фотографии). Вычертив точно ту или иную линию, автор для большей выразительности обводил ее



1) Рукопись «Изборника» хранится в ГИМе в Москве.


- 112 -

дополнительным контуром на расстоянии около 1 мм. Во всех случаях (кроме малых куполов и малых закомар) второй контур чертился внутри здания (рис. 25).

Размеры чертежа: ширина здания — 15 см; высота — 23,9 см. Анализ чертежа показал, что он мог быть построен только на основе «вавилона» с длинной стороной в 15 см1).

Чертежник XI в. начертил на книжном листе «вавилон» и, отобрав шесть основных линий, построил весь чертеж, пользуясь преимущественно линиями В/4 и в. Высота прямоугольной части здания образована путем прибавления 2в к боковой стороне «вавилона» (В) (рис. 26).

Высота малых куполов равна А/2, но на этой же линии расположен центр дуги большого купола. Остальное видно на чертеже.

Доказательства того, что интересующему нас чертежу храма предшествовал чертеж-«вавилон» следующие:

1. Нижняя орнаментальная рамка соответствует нижнему членению «вавилона».

2. Оси малых куполов и их барабанов находятся на продолжении боковых сторон второго прямоугольника «вавилона».

3. Два центра трехцентровых дуг свода здания находятся на средней линии «вавилона». Следы этих центров видны на подлиннике под осыпавшейся краской.

4. Точки смены радиусов в трехцентровых дугах находятся на линиях «вавилона».

Внимательный анализ методов построений чертежа храма в «Изборнике» Святослава убеждает нас в том, что он был изготовлен чертежником, хорошо знакомым с архитектурными расчетами, основанными на своеобразной геометрии «вавилона». Быть может, миниатюры «Изборника» 1073 г. помогут нам ближе подойти к решению важного вопроса о древних архитектурных чертежах.

Приведенных мною примеров построения планов зданий в натуре и чертежей зданий в древних книгах, разумеется, недостаточно для того, чтобы полностью раскрыть архитектурную методику древней Руси; необходимо изучать обильный, почти необъятный материал по архитектурным деталям, но при этом изучении надо стремиться понять психологию средневекового мастера, разгадать привычные для него, а не для нас приемы мышления и работы. Возможно, что «вавилоны» и являются таким ключем к давно забытой своеобразной архитектурной математике средневековья.



1) Для упрощения и большей ясности обозначим длинную сторону «вавилона» А, короткую — В, короткие перемычки («лестницы зиккурата») будут тогда А/4 и В/4; отрезки перемычек обозначим а и в (рис. 26).

Рис. 1. Изображение мудрого кентавра («Китовраса») с серебряного браслета XII в. из Калинина
Рис. 1. Изображение мудрого кентавра («Китовраса») с серебряного браслета XII в. из Калинина
Рис. 2. «Петр». Предполагаемое изображение зодчего Петра. Рисунок на стене. Антоньев монастырь в Новгороде. Нач. XII в.
Рис. 2. «Петр». Предполагаемое изображение зодчего Петра. Рисунок на стене. Антоньев монастырь в Новгороде. Нач. XII в.
Рис. 3. Графическое изображение русских саженей и их долей по принципу «вавилона» (из статьи Б. А. Рыбакова, 1949)
Рис. 3. Графическое изображение русских саженей и их долей по принципу «вавилона» (из статьи Б. А. Рыбакова, 1949)
Рис. 4. Кирпич IX в. со знаком «вавилона» (Саркел)
Рис. 4. Кирпич IX в. со знаком «вавилона» (Саркел)
Рис. 5. «Тавлея». Игральные доски. а — Новгород XIII в.; б — Псков XII в.
Рис. 5. «Тавлея». Игральные доски. а — Новгород XIII в.; б — Псков XII в.
Рис. 6. Обломок глиняной плиты IX в. с частью «Вавилона». Таманское городище. Раскопки 1954 г.
Рис. 6. Обломок глиняной плиты IX в. с частью «Вавилона». Таманское городище. Раскопки 1954 г.
Рис. 7. Черепица середины X в. с квадратным «вавилоном».
Рис. 8. Оборотная сторона той же черепицы с прямоугольным «вавилоном». Таманское городище. Раскопки 1953 г.
Рис. 7. Черепица середины X в. с квадратным «вавилоном». Рис. 8. Оборотная сторона той же черепицы с прямоугольным «вавилоном». Таманское городище. Раскопки 1953 г.
Рис. 9. Каменная плита с «вавилоном» из каменотесной мастерской 1023 г. Таманское городище. Раскопки 1953 г.
Рис. 9. Каменная плита с «вавилоном» из каменотесной мастерской 1023 г. Таманское городище. Раскопки 1953 г.
Рис. 10. Горло амфоры XI в. из каменотесной мастерской с тамгой строителей. Таманское городище, 1954 г.
Рис. 11. «Вавилон» на надгробной плите болгарского вельможи Мостича. Середина X в.
Рис. 10. Горло амфоры XI в. из каменотесной мастерской с тамгой строителей. Таманское городище, 1954 г. Рис. 11. «Вавилон» на надгробной плите болгарского вельможи Мостича. Середина X в.
Рис. 12. Глиняная плита с расчетным чертежом XII в. Старая Рязань. Раскопки А. Л. Монгайта, 1948 г.
Рис. 12. Глиняная плита с расчетным чертежом XII в. Старая Рязань. Раскопки А. Л. Монгайта, 1948 г.
Рис. 13. Прямоугольный «вавилон». Соотношение сторон
Рис. 13. Прямоугольный «вавилон». Соотношение сторон
Рис. 14. Решение задач на построение при помощи «вавилона»: удвоение квадрата; деление квадрата на два; деление квадрата на три; построение треугольника, равновеликого квадрату; построение шестиугольника, равновеликого квадрату; приближенное решение квадратуры круга.
Рис. 14. Решение задач на построение при помощи «вавилона»: удвоение квадрата; деление квадрата на два; деление квадрата на три; построение треугольника, равновеликого квадрату; построение шестиугольника, равновеликого квадрату; приближенное решение квадратуры круга.
Рис. 15. Единая геометрическая система древнерусских мер длины
Рис. 15. Единая геометрическая система древнерусских мер длины
Рис. 16. Геометрические взаимоотношения древнерусских мер
Рис. 16. Геометрические взаимоотношения древнерусских мер
Рис. 17. Расчетный чертеж XII в. Старая Рязань. а — «вавилон»; б — отобранные из него линии
Рис. 17. Расчетный чертеж XII в. Старая Рязань. а — «вавилон»; б — отобранные из него линии
Рис. 18. Аркатурный пояс Успенской Елецкой церкви XII в. в Чернигове.
Рис. 18. Аркатурный пояс Успенской Елецкой церкви XII в. в Чернигове.
Рис. 19. Построение аркатурного пояса при помощи расчетного чертежа
Рис. 19. Построение аркатурного пояса при помощи расчетного чертежа
Рис. 20. Аркатурный пояс Успенской Елецкой церкви. Обмерные данные
Рис. 20. Аркатурный пояс Успенской Елецкой церкви. Обмерные данные
Рис. 21. Реконструкция французского чертежа XII в., изображавшего Ноев ковчег (по В. П. Зубову)
Рис. 21. Реконструкция французского чертежа XII в., изображавшего Ноев ковчег (по В. П. Зубову)
Рис. 22а. Предполагаемая последовательность разработки плана – очертания Успенской Елецкой церкви. Определение общих габаритов
Рис. 22а. Предполагаемая последовательность разработки плана – очертания Успенской Елецкой церкви. Определение общих габаритов
Рис. 22б. Предполагаемая последовательность разбивки плана-«очертания» Успенской Елецкой церкви построение опорных столбов стен, нефов и нартекса
Рис. 22б. Предполагаемая последовательность разбивки плана-«очертания» Успенской Елецкой церкви построение опорных столбов стен, нефов и нартекса
Рис. 23. План-реконструкция Успенской Елецкой церкви
Рис. 23. План-реконструкция Успенской Елецкой церкви
Рис. 24. Подлинный обмерный план той же церкви
Рис. 24. Подлинный обмерный план той же церкви
Рис. 25. Изображение церкви на миниатюре «Изборника» Святослава 1073 г. (лист 3).
Рис. 25. Изображение церкви на миниатюре «Изборника» Святослава 1073 г. (лист 3).
Рис. 26. Реконструкция построения чертежа церкви на миниатюре «Изборника» 1073 г.
Рис. 26. Реконструкция построения чертежа церкви на миниатюре «Изборника» 1073 г.