Размещено на портале Архи.ру (www.archi.ru)

15.05.2007

Многолучевые высотные здания в жилищном строительстве

Высотные здания "Высотные здания" № 2/07. Стр. 78-81. <br><a href="http://www.tallbuildings.ru/">сайт журнала "Высотные здания"</a>

С развитием проектирования и строительства высотных зданий возникает необходимость исследований и поиска их оптимальных архитектурных решений. В этой области имеется много аспектов, однако остановимся на наиболее интересном и значимом из них. При разработке архитектуры здания, основой, как правило, становится архитектурно-планировочное решение. Очевидно, что от того насколько удачно оно найдено, зависит в какой степени проект будет выгодным для инвестора при реализации, а также уровень комфортабельности и экономичности здания при и эксплуатации.

За основу планировочного решения высоток обычно принимают схемы точечных домов с широким корпусом. Их типологический ряд по планировочной схеме1 весьма многообразен и включает в себя варианты планов, по форме представляющих собой квадрат, прямоугольник, круг, эллипс и т.п., а также сочетание нескольких форм. Из них можно выделить варианты, которые по внутренней структуре, а также и внешним очертаниям напоминают буквы Y, Х, Ж или их графические сочетания. В отличие от простых схем они более интересны и оригинальны, но в то же время являются упорядоченными и четкими. На основе этих планировочных схем формируются многолучевые здания.

Поскольку термин «многолучевые здания» пока трудно найти в каком-либо архитектурном словаре, дадим его определение.

Многолучевые здания формируются посредством планировочного приема, при котором объемно-планировочные элементы компонуются группами вокруг центрального ядра по нескольким направлениям в виде лучей. При этом под элементами объемно-планировочной схемы подразумеваются квартиры, а центральным ядром дома являются внеквартирные коммуникации (лестничные клетки, лифтовые холлы, внеквартирные коридоры и т.п.), технические помещения, инженерные коммуникации. Количество лучей может быть разным, от трех до восьми, так же, как и их длина и ширина (Рис. 1).

Разработки таких зданий появились с развитием индустриализации строительства многоквартирных жилых домов. В качестве примера можно привести «Проект дома для рабочих» на ул. Стромынка, в Москве, выполненный в 1924 г. архитектором Н.Ладовским (Рис. 2) [1. С.61].

В дальнейшем многолучевая схема планировки не раз использовалась при проектировании многоквартирных жилых домов, как в нашей стране, так и за рубежом.

Подобные здания выявлены например, при анализе зарубежного жилищного строительства в литературе 60-х гг. ХХ в. (Рис. 3 - 8) [2. С.171-177], [3. С.386].

В отечественном опыте проектирования жилища многолучевая планировочная схема, нашла применение при разработке типовых серий и индивидуальных проектов. Подтверждением служит большое количество примеров, которые можно найти в литературе и строительных каталогах [4. С.80, 84,114, 117, 119], [5. С.29-40] (Рис. 9 - 17). При этом, со временем архитектурно-планировочные решения1 рассматриваемых многоквартирных жилых домов становились все более разнообразными и сложными.

В настоящее время, с активизацией высотного строительства, многолучевые здания используются в составе престижных жилых комплексов (Рис. 18 - 24).

Такое планомерное развитие и широкое применение рассматриваемых зданий можно объяснить преимуществами планировочной схемы. Так, выработанные в настоящее время архитектурные решения многолучевых жилых домов имеют следующие положительные качества.

1. Получение в объеме одного здания широкой палитры квартир разных типов за счет возможности варьировать планировку по этажам, что обеспечивает гибкость в учете демографического состава населения района застройки, или фактора "покупаемости" разных типов квартир. Кроме того, возможно дифференцировать площади одинаковых типов квартир. Так, квартиры с одним количеством комнат имеют разные площади, что позволяет более эффективно осуществлять выбор жилья при заселении.

2. Возможность размещения до 13 квартир на этаже. Все квартиры хорошо защищены от шума лестнично-лифтовой зоны, имеют расширенные площади подсобных помещений.

3. Оптимальное решение внеквартирных коммуникаций, позволяющее включить в их состав дополнительные шахты и помещения для размещения компьютеризированных и автоматизированных инженерных систем, современную аппаратуру, в том числен и периферийные устройства бытовой техники.

4. Программируемое изменение размеров лучей (длину и ширину), дающее преимущество для архитектурно-планировочного и архитектурно-художественного1 решений, например, расширение или сужение силуэта здания по высоте, получение вариантов асимметричных и даже переменных по этажам решений в плане.

5. Выразительное и вариантное завершение, что создает наилучшие предпосылки для устройства в верхних этажах квартир типа "пентхауз".

6. Превращение дома в многофункциональный комплекс с учреждениями обслуживания, предприятиями торговли а также с включением в объем здания офисов, гостиниц и других объектов общественного назначения.

Экономичность рассматриваемого типа жилых домов заключается в следующем:
широкий корпус здания, обеспечивающий уменьшение показателя отношения периметра наружных стен к ограждаемой площади. Коэффициент ограждения К  = 0,16 м (секция П 44Т-4  К= 0,23 м) (отношение периметра наружных стен к ограждаемой площади) компактность внеквартирных коммуникаций и  меньшение их удельной площади по отношению к площади обслуживаемых квартир; использование меньшего количества лифтов на то же количество квартир на этаже по сравнению с типовыми домами секционного типа.

Таким образом, перечисленные преимущества многолучевых зданий, а также то, что их планировочная схема подходит для условий высотного строительства, позволяют сделать вывод, что они являются перспективным видом высоток.

Делая предположения о путях дальнейшего развития высотного строительства, связанного с использованием многолучевых высотных домов можно выдвинуть не мало интересных концептуальных предложений. Например, строительство жилых комплексов в экологически-чистых районах, являющихся наиболее комфортными для жилья. Или, застройка высотками искусственно создаваемых территорий над междугородными магистралями. Подобные перспективы - ближайшее будущее отечественного строительства. Об этом позволяет говорить динамика развития строительства в центральных городах страны, а также повышение уровня проектирования и перспективные проработки ведущих организаций.

Однако к сказанному следует добавить, что принять за основу многолучевую схему плана 17-ти этажки и механически трансформировать ее в высотный комплекс, увеличив количество лестниц и инженерно-технического оборудования было бы неправильно. Вряд ли получившееся здание оправдает ожидания инвесторов и вызовет одобрение у будущих жильцов. Вопросы проектирования высотных объектов весьма специфичны, требуют проработки многими специалистами, и их может решить далеко не каждое архитектурное бюро, или даже институт. Проектирование таких зданий остается приоритетом крупных организаций с научной базой имеющих опыт проектирования подобных объектов.

Поэтому проектировщик, прежде чем взяться за такой объект должен серьезно оценить свои возможности, а инвестор при поиске подрядчика разработчика проекта, обращать внимание не только на цену работ, но и опыт.

Приложение

В современной архитектурной практике существует ряд профессиональных терминов, которые часто используются в литературе, проектных материалах и считаются общеизвестными. Однако, их определения не даны в современных словарях, в связи с чем, у разных авторов, их трактовка и вкладываемый смысл, нередко отличаются. Чтобы избежать возможных недоразумений, в данном приложении приведена трактовка терминов, используемых статье.

Архитектурное решение здания (архитектура здания) – архитектурная часть проекта с комплексным решением функциональных, конструктивных, и эстетических требований к объекту, а также социальных экономических, санитарно-гигиенических, экологических, инженерно-технических аспектов. Его главными разделами являются архитектурно-художественное, архитектурно-планировочное и конструктивное решения.

Архитектурно-художественное решение (архитектурно-художественный образ, облик) здания – проектные материалы, представляющие внешний вид и интерьеры объекта, выполненные в соответствии с концепцией, выбранным архитектурным стилем, посредством проработки объемно-пространственного, архитектурно-композиционного решений и архитектурно-художественных приемов.

·Объемно-пространственное решение здания – моделирование внешней формы объема здания на основе объемно-планировочного решения.

·Архитектурно-композиционное решение – построение композиции объемов всего здания, фасадов, интерьеров при обработке объемно-пространственного решения посредством архитектоники объемных форм и архитектурно-художественных приемов.

·Архитектурно-художественные приемы – используемые в зодчестве художественные приемы композиции, сочетания материалов, обработки поверхностей, освещения и т.п.

Архитектурно-планировочное решение здания – проектные материалы, представляющие поэтажные планы здания, проработанные с учетом планировочной схемы, функционально-планировочного и объемно-планировочного решений.

·Планировочная схема – структура плана, в которой определено размещение основных помещений и их конфигурация с учетом предполагаемой конструктивной схемы здания.

·Функционально-планировочное решение здания – решение поэтажных планов, где определены набор помещений, их назначение и функциональные взаимосвязи.

·Объемно-планировочное решение здания – решение поэтажных планов, где взаимоувязаны габариты помещений в плане и в общем объеме здания.

Литература:

1. У.Брумфилд, Б.Рубл. Жилище в России: век ХХ. Архитектура и социальная история. – Монографический сборник. – М.: «Три квадрата», 2001. – 192 с.: ил.

2. В.Г.Калиш, В.А.Коссаковский, О.И.Ржехина Типы домов и квартир за рубежом (многоэтажное жилищное строительство). – Академия строительства и архитектуры СССР НИИ жилища. – М.: Государственное издательство литературы по строительству, архитектуре и строительным материалам, 1959. – 301 с.: ил.

3. Проектирование жилых зданий: Пер. с англ. (В.А.Коссаковского, М.С.Школьникова, Б.К.Явнеля) /Дж. Максаи, Ю.Холланд, Г.Нахман, Дж.Якер. – М.:Стройиздат, 1979/ - 488 с.: ил., табл. – Перевод изд.: Housing, /J/Macsai, E.Holland, H.Nachman, J.Wiley & Sons. Inc. – 1976.

4. Жилые дома, построенные по образцовым, типовым и повторно применяемым проектам в г. Москве. Правительство Москвы, Москомархитектура, МНИИТЭП. – М.: «Реформ-Пресс», 2000. – 136 с.: ил.

5. Московский территориальный строительный каталог МТСК. Правительство Москвы, Москомархитектура. Часть 1 – Здания и сооружения. Раздел МТСК-1.1 – Жилые здания. Том 2 – Перечень и каталожные листы проектов жилых домов и блок-секций для массового индустриального строительства, индивидуальных, повторно-применяемых и экспериментальных, блокированных жилых домов и коттеджей для перспективного строительства. – М.: - 1999. – с.: ил.

6. Центральный научно-исследовательский и проектный институт жилых и общественных зданий ОАО ЦНИИЭП жилища (Проспект). – М.: ОАО ЦНИИЭП жилища, 2004. – 97 с.: ил.

7. Ю.Г.Граник, А.А.Магай, Н.В.Дубынин и др. Архитектурно-технические решения нового типа энергосберегающего высотного 35-ти этажного жилого дома. – М.: ОАО ЦНИИЭП жилища, 2004. – 31с.: ил.

8. Рекламные проспекты компаний: «Капитал Групп», «Декра», «Крост».

1. Многолучевая схема планировки здания.
1. Многолучевая схема планировки здания.
2 б. Дом для рабочих. Москва, ул. Стромынка. Арх. Н.Ладовский. 1924 г. Схема застройки.
2 б. Дом для рабочих. Москва, ул. Стромынка. Арх. Н.Ладовский. 1924 г. Схема застройки.
3 б. 2-этажный дом в Грендале. Стокгольм. Швеция. Арх. Бакстрэм, Рейсмус. 1944-1946 г.г. Схема застройки.
3 б. 2-этажный дом в Грендале. Стокгольм. Швеция. Арх. Бакстрэм, Рейсмус. 1944-1946 г.г. Схема застройки.
4 а. 12-этажный дом в жилом комплексе Летциграбен. Цюрих. Швейцария. Арх. Штейнер. 1951-1952 г.г. План типового этажа.
4 а. 12-этажный дом в жилом комплексе Летциграбен. Цюрих. Швейцария. Арх. Штейнер. 1951-1952 г.г. План типового этажа.
4 б. 12-этажный дом в жилом комплексе Летциграбен. Цюрих. Швейцария. Арх. Штейнер. 1951-1952 г.г. Вид застройки.
4 б. 12-этажный дом в жилом комплексе Летциграбен. Цюрих. Швейцария. Арх. Штейнер. 1951-1952 г.г. Вид застройки.
5 а. 16-18 этажный жилой дом в жилом комплексе Кастел-Виллэдж. Нью-Йорк (шт. Нью-Йорк), США. Арх. Пелхэм. 60-тые годы. План типового этажа.
5 а. 16-18 этажный жилой дом в жилом комплексе Кастел-Виллэдж. Нью-Йорк (шт. Нью-Йорк), США. Арх. Пелхэм. 60-тые годы. План типового этажа.
5 б. 16-18 этажный жилой дом в жилом комплексе Кастел-Виллэдж. Нью-Йорк (шт. Нью-Йорк), США. Арх. Пелхэм. 60-тые годы. Схема застройки.
5 б. 16-18 этажный жилой дом в жилом комплексе Кастел-Виллэдж. Нью-Йорк (шт. Нью-Йорк), США. Арх. Пелхэм. 60-тые годы. Схема застройки.
5 в. 16-18 этажный жилой дом в жилом комплексе Кастел-Виллэдж. Нью-Йорк (шт. Нью-Йорк), США. Арх. Пелхэм. 60-тые годы. Вид застройки.
5 в. 16-18 этажный жилой дом в жилом комплексе Кастел-Виллэдж. Нью-Йорк (шт. Нью-Йорк), США. Арх. Пелхэм. 60-тые годы. Вид застройки.
6 а. Высотные жилые здания Марина-Сити. Чикаго (шт. Эллинойс). США. Арх. Бертран Голдберг и др. План типового этажа.
6 а. Высотные жилые здания Марина-Сити. Чикаго (шт. Эллинойс). США. Арх. Бертран Голдберг и др. План типового этажа.
6 б. Высотные жилые здания Марина-Сити. Чикаго (шт. Эллинойс). США. Арх. Бертран Голдберг и др. Вид застройки.
6 б. Высотные жилые здания Марина-Сити. Чикаго (шт. Эллинойс). США. Арх. Бертран Голдберг и др. Вид застройки.
7 а. Высотные жилые здания «Артур Шомбург Плаза». Нью-Йорк (шт. Нью-Йорк). США. арх. Гразен и др. План типового этажа.
7 а. Высотные жилые здания «Артур Шомбург Плаза». Нью-Йорк (шт. Нью-Йорк). США. арх. Гразен и др. План типового этажа.
7 б. Высотные жилые здания «Артур Шомбург Плаза». Нью-Йорк (шт. Нью-Йорк). США. арх. Гразен и др. Схема застройки.
7 б. Высотные жилые здания «Артур Шомбург Плаза». Нью-Йорк (шт. Нью-Йорк). США. арх. Гразен и др. Схема застройки.
7 в. Высотные жилые здания «Артур Шомбург Плаза». Нью-Йорк (шт. Нью-Йорк). США. арх. Гразен и др. Вид застройки.
7 в. Высотные жилые здания «Артур Шомбург Плаза». Нью-Йорк (шт. Нью-Йорк). США. арх. Гразен и др. Вид застройки.
8 а. Высотное жилое здание Лейк-Поинт Тауэр. Чикаго (шт. Иллинойс). США. Арх. Шиппорейт, Хейнрих. План типового этажа.
8 а. Высотное жилое здание Лейк-Поинт Тауэр. Чикаго (шт. Иллинойс). США. Арх. Шиппорейт, Хейнрих. План типового этажа.
8 б. Высотное жилое здание Лейк-Поинт Тауэр. Чикаго (шт. Иллинойс). США. Арх. Шиппорейт, Хейнрих. Схема застройки.
8 б. Высотное жилое здание Лейк-Поинт Тауэр. Чикаго (шт. Иллинойс). США. Арх. Шиппорейт, Хейнрих. Схема застройки.
8 в. Высотное жилое здание Лейк-Поинт Тауэр. Чикаго (шт. Иллинойс). США. Арх. Шиппорейт, Хейнрих. Вид застройки.
8 в. Высотное жилое здание Лейк-Поинт Тауэр. Чикаго (шт. Иллинойс). США. Арх. Шиппорейт, Хейнрих. Вид застройки.
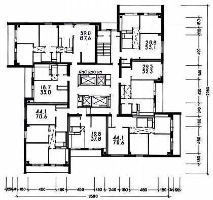
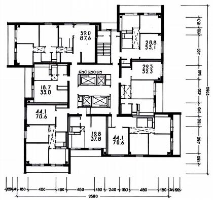
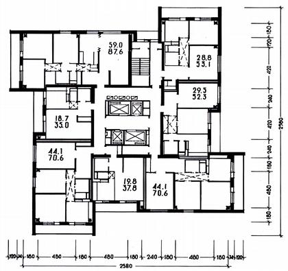
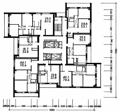
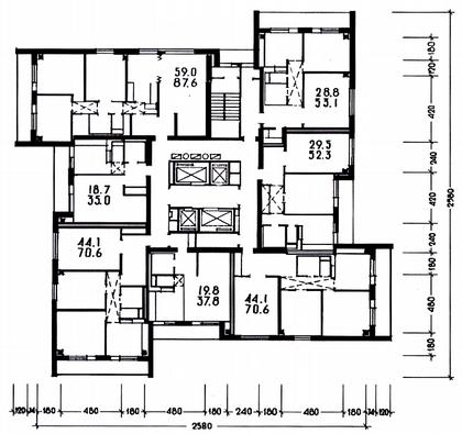
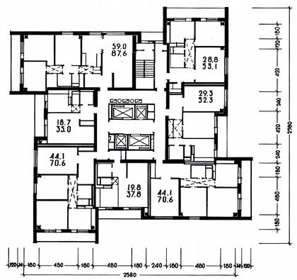
9 а. 22-этажный крупнопанельный  жилой дом П4/22. Москва, р-н Тропарево. Арх. А.Самсонов, А.Бергельсон. 1971г. План типового этажа.
9 а. 22-этажный крупнопанельный жилой дом П4/22. Москва, р-н Тропарево. Арх. А.Самсонов, А.Бергельсон. 1971г. План типового этажа.
9 б. 22-этажный крупнопанельный  жилой дом П4/22. Москва, р-н Тропарево. Арх. А.Самсонов, А.Бергельсон. 1971г. Вид застройки.
9 б. 22-этажный крупнопанельный жилой дом П4/22. Москва, р-н Тропарево. Арх. А.Самсонов, А.Бергельсон. 1971г. Вид застройки.
10 а. 25-этажный каркаснопанельный  жилой дом И-521А. Москва, просп. Маршала Жукова. Арх. Р.Саруханян. (МНИИТЭП М-2). 1974г. План типового этажа.
10 а. 25-этажный каркаснопанельный жилой дом И-521А. Москва, просп. Маршала Жукова. Арх. Р.Саруханян. (МНИИТЭП М-2). 1974г. План типового этажа.
10 б. 25-этажный каркаснопанельный  жилой дом И-521А. Москва, просп. Маршала Жукова. Арх. Р.Саруханян. (МНИИТЭП М-2). 1974г. Вид застройки.
10 б. 25-этажный каркаснопанельный жилой дом И-521А. Москва, просп. Маршала Жукова. Арх. Р.Саруханян. (МНИИТЭП М-2). 1974г. Вид застройки.
11 а. Проекты 24-этажных жилых домов в сборно-монолитных конструкциях с первым нежилым этажом И-1279, И-1289, И-1303. Москва, Каширское ш. Арх. Ю.Григорьев, Г.Калашников, И.Калашникова, И.Денисьев, В.Дадья. (МНИИТЭП М-2). 1995г. План типового этажа.
11 а. Проекты 24-этажных жилых домов в сборно-монолитных конструкциях с первым нежилым этажом И-1279, И-1289, И-1303. Москва, Каширское ш. Арх. Ю.Григорьев, Г.Калашников, И.Калашникова, И.Денисьев, В.Дадья. (МНИИТЭП М-2). 1995г. План типового этажа.
11 б. Проекты 24-этажных жилых домов в сборно-монолитных конструкциях с первым нежилым этажом И-1279, И-1289, И-1303. Москва, Каширское ш. Арх. Ю.Григорьев, Г.Калашников, И.Калашникова, И.Денисьев, В.Дадья. (МНИИТЭП М-2). 1995г. Вид застройки.
11 б. Проекты 24-этажных жилых домов в сборно-монолитных конструкциях с первым нежилым этажом И-1279, И-1289, И-1303. Москва, Каширское ш. Арх. Ю.Григорьев, Г.Калашников, И.Калашникова, И.Денисьев, В.Дадья. (МНИИТЭП М-2). 1995г. Вид застройки.
12 а. 24-этажный каркасно-панельный  жилой дом. Москва, Кантемировская ул. Арх. М.Скулиновский, А.Юдаком, М.Кочергина. 1996г. План типового этажа.
12 а. 24-этажный каркасно-панельный жилой дом. Москва, Кантемировская ул. Арх. М.Скулиновский, А.Юдаком, М.Кочергина. 1996г. План типового этажа.
12 б. 24-этажный каркасно-панельный  жилой дом. Москва, Кантемировская ул. Арх. М.Скулиновский, А.Юдаком, М.Кочергина. 1996г. Вид застройки.
12 б. 24-этажный каркасно-панельный жилой дом. Москва, Кантемировская ул. Арх. М.Скулиновский, А.Юдаком, М.Кочергина. 1996г. Вид застройки.
13 а. Проект 25-этажного жилого дома в сборно-монолитных конструкциях И-1820 (МНИИТЭП М-2). План типового этажа.
13 а. Проект 25-этажного жилого дома в сборно-монолитных конструкциях И-1820 (МНИИТЭП М-2). План типового этажа.
13 б. Проект 25-этажного жилого дома в сборно-монолитных конструкциях И-1820 (МНИИТЭП М-2). Фасад.
13 б. Проект 25-этажного жилого дома в сборно-монолитных конструкциях И-1820 (МНИИТЭП М-2). Фасад.
14 а. Проект комплекса жилых домов для экспериментального строительства И-1782/1-5 (МНИИТЭП М-2). План типового этажа.
14 а. Проект комплекса жилых домов для экспериментального строительства И-1782/1-5 (МНИИТЭП М-2). План типового этажа.
19 в. Многоэтажный жилой комплекс  «Аркада Хаус». Москва, ул. Островитянова. Арх. Ю.А.Макаров и др.  (НПО Архид).  Перспектива застройки.
19 в. Многоэтажный жилой комплекс «Аркада Хаус». Москва, ул. Островитянова. Арх. Ю.А.Макаров и др. (НПО Архид). Перспектива застройки.
20 а. Жилой комплекс «Северный город». Москва, ул. Дубнинская. (архитектурное бюро «Капитал Групп»). План типового этажа.
20 а. Жилой комплекс «Северный город». Москва, ул. Дубнинская. (архитектурное бюро «Капитал Групп»). План типового этажа.
20 б. Жилой комплекс «Северный город». Москва, ул. Дубнинская. (архитектурное бюро «Капитал Групп»). Схема застройки.
20 б. Жилой комплекс «Северный город». Москва, ул. Дубнинская. (архитектурное бюро «Капитал Групп»). Схема застройки.
20 в. Жилой комплекс «Северный город». Москва, ул. Дубнинская. (архитектурное бюро «Капитал Групп»). Вид застройки.
20 в. Жилой комплекс «Северный город». Москва, ул. Дубнинская. (архитектурное бюро «Капитал Групп»). Вид застройки.
21 а. Жилой комплекс «Олимпия». Москва, ул. Исаковского, д. 39, вл. 27/2. (Концерн Крост). План типового этажа.
21 а. Жилой комплекс «Олимпия». Москва, ул. Исаковского, д. 39, вл. 27/2. (Концерн Крост). План типового этажа.
21 б. Жилой комплекс «Олимпия». Москва, ул. Исаковского, д. 39, вл. 27/2. (Концерн Крост). Перспектива застройки.
21 б. Жилой комплекс «Олимпия». Москва, ул. Исаковского, д. 39, вл. 27/2. (Концерн Крост). Перспектива застройки.
22 а. Варианты многолучевых зданий для высотного строительства. Арх. А.А.Магай, Н.В.Дубынин. 2000 – 2003 г.г. План типового этажа (вариант).
22 а. Варианты многолучевых зданий для высотного строительства. Арх. А.А.Магай, Н.В.Дубынин. 2000 – 2003 г.г. План типового этажа (вариант).
22 в. Варианты многолучевых зданий для высотного строительства. Арх. А.А.Магай, Н.В.Дубынин. 2000 – 2003 г.г. Фасад.
22 в. Варианты многолучевых зданий для высотного строительства. Арх. А.А.Магай, Н.В.Дубынин. 2000 – 2003 г.г. Фасад.
23 а. Многоэтажный жилой дом со встроенными нежилыми помещениями на первых этажах «Эдельвейс». Москва, ул. Давыдковская, вл. 3. Арх. В.А.Чурилов, А.Н.Горелкин и др.  (ЦНИИЭП жилища). 2001 г. План этажа.
23 а. Многоэтажный жилой дом со встроенными нежилыми помещениями на первых этажах «Эдельвейс». Москва, ул. Давыдковская, вл. 3. Арх. В.А.Чурилов, А.Н.Горелкин и др. (ЦНИИЭП жилища). 2001 г. План этажа.
23 б. Многоэтажный жилой дом со встроенными нежилыми помещениями на первых этажах «Эдельвейс». Москва, ул. Давыдковская, вл. 3. Арх. В.А.Чурилов, А.Н.Горелкин и др.  (ЦНИИЭП жилища). 2001 г.   Вид застройки.
23 б. Многоэтажный жилой дом со встроенными нежилыми помещениями на первых этажах «Эдельвейс». Москва, ул. Давыдковская, вл. 3. Арх. В.А.Чурилов, А.Н.Горелкин и др. (ЦНИИЭП жилища). 2001 г. Вид застройки.
24 а. Архитектурно-технические решения нового типа энергосберегающего высотного 35 этажного жилого дома Арх. А.А.Магай, Н.В.Дубынин (ЦНИИЭП жилища). 2004 г. План типового этажа.
24 а. Архитектурно-технические решения нового типа энергосберегающего высотного 35 этажного жилого дома Арх. А.А.Магай, Н.В.Дубынин (ЦНИИЭП жилища). 2004 г. План типового этажа.
24 б. Архитектурно-технические решения нового типа энергосберегающего высотного 35 этажного жилого дома Арх. А.А.Магай, Н.В.Дубынин (ЦНИИЭП жилища). 2004 г. Перспектива.
24 б. Архитектурно-технические решения нового типа энергосберегающего высотного 35 этажного жилого дома Арх. А.А.Магай, Н.В.Дубынин (ЦНИИЭП жилища). 2004 г. Перспектива.
2 a. Дом для рабочих. Москва, ул. Стромынка. Арх. Н.Ладовский. 1924 г. План 1-го этажа с квартирами.
2 a. Дом для рабочих. Москва, ул. Стромынка. Арх. Н.Ладовский. 1924 г. План 1-го этажа с квартирами.
19 а. Многоэтажный жилой комплекс  «Аркада Хаус». Москва, ул. Островитянова. Арх. Ю.А.Макаров и др.  (НПО Архид). План типового этажа.
19 а. Многоэтажный жилой комплекс «Аркада Хаус». Москва, ул. Островитянова. Арх. Ю.А.Макаров и др. (НПО Архид). План типового этажа.
3 а. 2-этажный дом в Грендале. Стокгольм. Швеция. Арх. Бакстрэм, Рейсмус. 1944-1946 г.г. План типового этажа.
3 а. 2-этажный дом в Грендале. Стокгольм. Швеция. Арх. Бакстрэм, Рейсмус. 1944-1946 г.г. План типового этажа.
18. Жилой комплекс «Янтарный». Москва, ул. Лавочкина, д. 34. Арх. А.А.Попов, М.Л.Павлова, Н.И.Кондрашина (ЦНИИЭП жилища). Перспектива застройки.
18. Жилой комплекс «Янтарный». Москва, ул. Лавочкина, д. 34. Арх. А.А.Попов, М.Л.Павлова, Н.И.Кондрашина (ЦНИИЭП жилища). Перспектива застройки.
17. Индивидуальный 24-этажный дом с первым нежилым этажом и подземной автостоянкой. Москва, ул. Академическая, вл. 38. Арх. В.В.Дзедушицкий, Н.Ю.Рожкова, С.Е.Голованов (ЦНИИЭП жилища). Перспектива.
17. Индивидуальный 24-этажный дом с первым нежилым этажом и подземной автостоянкой. Москва, ул. Академическая, вл. 38. Арх. В.В.Дзедушицкий, Н.Ю.Рожкова, С.Е.Голованов (ЦНИИЭП жилища). Перспектива.
14 б. Проект комплекса жилых домов для экспериментального строительства И-1782/1-5 (МНИИТЭП М-2). Фасад.
14 б. Проект комплекса жилых домов для экспериментального строительства И-1782/1-5 (МНИИТЭП М-2). Фасад.
15 а. Проект 25-этажного жилого дома в монолитных конструкциях И-1822 (МНИИТЭП М-2). План типового этажа.
15 а. Проект 25-этажного жилого дома в монолитных конструкциях И-1822 (МНИИТЭП М-2). План типового этажа.
15 б. Проект 25-этажного жилого дома в монолитных конструкциях И-1822 (МНИИТЭП М-2). Фасад.
15 б. Проект 25-этажного жилого дома в монолитных конструкциях И-1822 (МНИИТЭП М-2). Фасад.
16 а. Проект 22-этажного жилого дома с ФОК и подземной стоянкой И-1737 (МНИИТЭП М-2). План типового этажа.
16 а. Проект 22-этажного жилого дома с ФОК и подземной стоянкой И-1737 (МНИИТЭП М-2). План типового этажа.
16 б. Проект 22-этажного жилого дома с ФОК и подземной стоянкой И-1737 (МНИИТЭП М-2). Фасад.
16 б. Проект 22-этажного жилого дома с ФОК и подземной стоянкой И-1737 (МНИИТЭП М-2). Фасад.
19 б. Многоэтажный жилой комплекс  «Аркада Хаус». Москва, ул. Островитянова. Арх. Ю.А.Макаров и др.  (НПО Архид). Схема застройки.
19 б. Многоэтажный жилой комплекс «Аркада Хаус». Москва, ул. Островитянова. Арх. Ю.А.Макаров и др. (НПО Архид). Схема застройки.