Размещено на портале Архи.ру (www.archi.ru)

05.06.2013

Альберт Кан и Эрнст Май: Америка и Германия в борьбе за советскую индустриализацию. Часть I

Статья развивает тему участия А. Кана и Э. Мая в формировании системы массового (промышленного и гражданского профиля) проектного дела в СССР, поднятую в статьях:
1) Политическая история советской архитектуры и градостроительства [электронный ресурс] / М.Г. Меерович / - режим доступа: http://archi.ru/lib/publication.html?id=1850569830;
2) Альберт Кан в истории советской индустриализации [электронный ресурс] / М.Г. Меерович /- режим доступа:  http://archi.ru/lib/publication.html?id=1850569787;
3) Эрнст Май и проектирование соцгородов в годы первых пятилеток (на примере Магнитогорска). / Е. В. Конышева, М. Г. Меерович – М.: ЛЕНАНД, 2012 – 224 с. (монография).

АМЕРИКА И ГЕРМАНИЯ В БОРЬБЕ ЗА СОВЕТСКУЮ ИНДУСТРИАЛИЗАЦИЮ. ФОРДИЗМ

Генри Форд изобрел свое поточно-конвейерное производство в 1908 г., впервые применив на практике теорию Тейлора в приложении к такому технически крайне сложному изделию, как автомобиль. Советская идеология долгие годы клеймила «бесчеловечную природу» системы Тейлора меткими ленинскими определениями: «научная» система выжимания пота»[1], «система порабощения человека машиной» [2], «утонченное зверство буржуазной эксплуатации»[3] и т.п. Но это на словах. На деле же советское руководство проявляло к тейлоровской системе и фордовскому конвейеру немалый интерес. Причина не только в том, что они, опять же по ленинскому выражению, соединили в себе «… ряд богатейших научных завоеваний в деле анализа механических движений при труде, изгнания лишних и неловких движений, выработки правильнейших приемов работы, введения наилучших систем учета и контроля и т. д.»[4]. Но, прежде всего, в том, что уничтожив рыночную экономику и частное предпринимательство, заменив товарные отношения распределительной системой, большевики невольно ликвидировали всю традиционную систему стимулов к труду и были вынуждены искать новые формы организации и руководства производственными процессами, которые могли бы быть прагматически эффективными в этих условиях. Поиск привел в итоге к возникновению причудливого сочетания методов принуждения и насилия, морально-политических обязательств и материального стимулирования.
Фордовский конвейер, несмотря на негативные оценки его со стороны вождя мирового пролетариата, был той формой рационализации производства, которая позволяла с максимальной эффективностью использовать широкие массы низкоквалифицированной рабочей силы. Только фордовский конвейер способен был обеспечить производство в СССР массовой «среднекачественной» продукции. Только он мог удовлетворить постоянно растущие планы выпуска военных изделий. Только он позволял ставить к станку вчерашних крестьян (а также женщин и подростков), не тратя времени и денег на их специализированное профессиональное обучение. Все это становилось возможным в результате: а) разделения труда (разбиения процессов на небольшие операции, которые способен был выполнять неквалифицированный персонал, тем самым, высвобождая высококвалифицированные кадры для управления и оптимизации производственными процессами), б) стандартизации и типизации узлов, агрегатов и запчастей, в) развертывания организации процесса не вокруг специализированных станков, а, наоборот, за счет «расстановки» станков вдоль непрерывного производственного потока (ленты сборочного конвейера).

Широко практикуемое в Америке и Германии крупносерийное поточное производство и строительство, стандартизация и унификация промышленных изделий и инженерных конструкций, конвейерная сборка и новые технологии не могли не привлечь внимание советского руководства, прекрасно понимавшего, что без заимствования передового зарубежного опыта ему не удастся осуществить стремительный прыжок в индустриально развитое будущее, не удастся стать мирового уровня промышленно развитой державой. Но первые же попытки внедрения в СССР поточно-конвейерной сборки сложных изделий, первые же опыты по организации производства в виде автоматизированного «функционального потока», выявили ряд «местных» особенностей. Непрерывность производственного процесса – от станка к станку, от цеха к цеху, от заготовки к конечному продукту, не позволяла устанавливать первопричины конкретного брака; сменность лишала возможности выявлять «авторов» поломки станков и механизмов, организация работы конвейера в виде «сквозных бригад» мешала выявлять конкретных виновников порчи инструментов и оборудования; «сдельщина» толкала рабочих к погоне за количеством в ущерб качеству…. «Непрерывка» сборки вызывала «обезличку» продукта, а стремление «перевыполнить план» разрушало «ритмичность». Человеческие «винтики» механизма поточного производства, никак не вставлялись в уготованные для них места.

Применительно к советскому образу будущего, фордовская система рисовалась в виде картины непрерывно сходящих с конвейера бесконечных верениц танков, самолетов, пулеметов, пушек и т.п., потому что большевики создали такую хозяйственную систему, которая год за годом, все в большей степени, опиралась на развитии военно-промышленного комплекса. 

Казалось бы, ну и что в этом особенного – многие капиталистические страны в тот период использовали в мирное время военное производство, как маховик для интенсификации и технического перевооружения гражданской промышленности. Они сознательно превращали военно-промышленный комплекс в искусственное средство стимулирования развития ряда гражданских отраслей тяжелой промышленности. Потому что эти отрасли были лишены достаточного внутреннего импульса со стороны потребительского рынка, так как не производили непосредственно товаров массового потребления, как это делала легкая промышленность. Именно поэтому военные заказы, размещаемые на гражданских заводах, использовались западной экономикой, на первых шагах производственно-экономической реформы, для запуска процесса втягивания гражданской отраслью в себя все новых и новых передовых технологий. Технологическое перевооружение гражданских производств, происходившее под воздействие военных заказов, на следующем этапе реформ, приводило к расширению ассортимента товаров, их удешевлению, расширению общественного потребления в целом – образовывался все более и более емкий рынок разнообразной гражданской продукции и все более широкий спектр различных видов услуг и т.п. А затем уже сам рынок гражданской продукции, товаров народного потребления и услуг, уже самостоятельно ускорял дальнейший экономический рост и стимулировал приток инвестиций в новые отрасли производства товаров широкого потребления. Такова была «механика» искусственного запуска маховика собственного, самостоятельного (т.е. уже независимого от военной) развития гражданской промышленности. Как легкой, так и тяжелой. Подобная задача, собственно, и являлась в зарубежных странах главной целью индустриализации. А саморазвитие гражданской промышленности – ее важнейшим результатом. 

Однако, советская индустриализация походила на этот процесс лишь некоторыми внешними чертами. Содержательно же здесь все обстояло диаметрально противоположным образом. В Советском Союзе гражданская промышленность была лишена способности к какому-либо саморазвитию, потому что развивалась планово. То есть, в зависимости от тех приказов, которые получала, от тех ресурсов (в том числе и людских), которые ей выделялись, от того списка и объемов продукции, которые ей предписывалось изготавливать.

Гражданская промышленность в СССР, несмотря на все пропагандистские заверения, не выполняла задачи повышения благосостояния населения. Она, в подавляющей массе своей, была подчинена потребностям военного производства – обеспечивала его заготовками, материалами, комплектующими изделиями, деталями, станками, инструментом, мало-мальски подготовленной рабочей силой и проч. Как следствие, все те гражданские предприятия, которые были включены в кооперацию с военными отраслями, получали, по мере предъявления к ним все более высоких требований со стороны военных, возможность развивать свой станочный парк и технологии. А те предприятия гражданской промышленности, которые оставались вне подключенности к военным заказам, на долгие десятилетия сохраняли примитивное дореволюционное оборудование, отсталые формы организации труда и допотопные технологии. 

В СССР маховик стремительного развития военно-промышленного комплекса, точно также, как и в капиталистических странах, интенсифицировал развитие отраслей тяжелой промышленности. Но не для того, чтобы, в конечном счете, расширить сферу услуг, быта, досуга, потребления и т.п., а, прежде всего, для того, чтобы расширяться самому военному производству. В СССР военно-промышленный комплекс не являлся дополнительным стимулом для развития гражданских производств. Он существовал сам для себя – был главной целью, основным заказчиком, единственной причиной целенаправленного и интенсивного развития тяжелой промышленности. Никаких других – «гражданских тяжелых промышленностей» в СССР не существовало. Они под таковые лишь маскировались. Подавляющая же масса якобы «гражданских» предприятий, представляла собой военно-гражданские ассимилированные производства[5], которые возводились для выполнения военных заказов и лишь побочно занимались изготовлением мирной техники, и то, только лишь потому, что власть вынуждена была хоть как-то кормить и одевать трудящихся и обмундировывать растущую с каждым днем армию. 

Ситуация в промышленности была весьма непростая – производительность труда оказывалась «… значительно ниже дореволюционной. В некоторых предприятиях рабочих было в два раза больше, чем в 1913 г., а производили они меньше, чем тогда. … дисциплина на предприятиях была крайне расшатана. С администрацией мало считались. Характерны были постоянные прогулы по неуважительным причинам. Принудительное, до НЭП, воздержание от спиртных напитков исчезло, в продаже появилась водка, вместе с нею пьянство, массовые невыходы на работу после получения заработка и праздничных дней»[6]. При этом, планируемые и уже возводимые новые военные и военно-гражданские ассимилированные производства требовали все новых и новых миллионов рабочих рук. И, самое важное, эти трудовые ресурсы, эти массы притекающих на предприятия-новостройки неквалифицированных рабочих – вчерашних крестьян, сознательно и целенаправленно выдавливаемых из деревни коллективизацией, необходимо было принуждать качественно трудиться.

Вот здесь-то и возникает вторая волна интереса к изданной в СССР еще в 1924 г. книге Г. Форда «Моя жизнь, мои достижения» и непосредственно к ее автору. Гибкая советская идеологическая машина тут же легко извлекает на свет другое высказывание Ленина, рекомендовавшего выявлять содержащиеся в системе Тейлора рациональные элементы и творчески направлять их на «... сокращение рабочего времени, использование новых приемов производства и организации труда без всякого вреда для рабочей силы трудящегося населения»[7].

Болтовня по поводу сокращения рабочего времени, так и остается пустопорожней болтовней – интенсификация труда на советских фабриках и заводах не уменьшается, напротив, безмерно возрастает по мере развертывания программы индустриализации. А вот «новые приемы организации труда и быта» действительно возникают. В частности, формируется целый комплекс законов, все более ужесточающих трудовую повинность и, одновременно, накрепко привязывающих людей к месту работы. Так, в 1932 г. вводятся внутренние паспорта, прикрепляющие, посредством «прописки», население к селитьбе при производстве, причем в количестве, исключающем избыток, либо недостаток рабочей силы и, следовательно, конкуренцию, безработицу или недоукомплектованность рабочих мест. В постановлении ЦИК и СНК от 27 декабря 1932 г. «Об установлении единой паспортной системы по Союзу ССР и обязательной прописки паспортов» эта цель выражена прямым текстом: «В целях (…) разгрузки (…) населенных мест от лиц, не связанных с производством и (…) не занятых общественно-полезным трудом (...)»[8]. Позднее вводятся специальные формы трудовых книжек[9], которые дополнительными путами прикрепляют население к месту работы, причем в форме, фиксирующей качественные показатели отношения человека к трудовой деятельности: причины увольнения, мотивы перевода по службе, характер должностного роста, поощрения, награждения, порицания, провинности и проч., связанные с работой на данном предприятии. В 1940-м, указом Президиума Верховного Совета СССР «О переходе на восьмичасовой рабочий день и семидневную рабочую неделю и о запрещении самовольного ухода рабочих и служащих с предприятий и учреждений»[10], рабочие и служащие совершенно официально и окончательно закрепляются за местом работы. Неявка на работу начинает караться немедленным увольнением, лишением продовольственных карточек, выселением с занимаемой жилплощади и даже уголовным наказанием… На «конвейере советской индустриализации» человеческие «детальки» подгоняются к своим рабочим местам предельно плотно, «без люфтов».

В 1927-1929 гг., по мере разработки и утверждения плана индустриализации, ВСНХ СССР – главный подрядчик советского военно-промышленного комплекса, получает все новые и новые задания по введению в строй огромного количества промышленных, энергетических, добывающих и прочих предприятий. Причем, партийно-правительственное руководство страной требуют от ВСНХ исполнения этих планов в невероятно короткие сроки. Попытки самостоятельно проектировать и строить крупные, технически сложные объекты завершаются неудачей. Она постигает первый советский проект Магнитогорского металлургического комбината, строительство Сталинградского и Челябинского тракторных заводов, Свирской ГЭС и др.[11]. Об отечественном дореволюционном положительном техническом и организаторском опыте никто не вспоминает – «дедовские» традиции «социалистической индустрией» отвергаются идеологически. При этом очевидно, что начинать все разрабатывать самим – непродуктивно, потому что затраты времени и денег на создание того, что уже появилось и применяется в других странах, намного превысят цену покупки и увеличат отставание. Опыт европейских стран (Германии, Франции и др.) представляется недостаточно масштабным для такой огромной страны, как СССР, а вот размах массового производства в США, восхищает и завораживает сознание – он вполне отвечает гигантской поступи советских пятилетних планов[12]. Руководство страной принимает решение выполнить поставленные партией задачи при помощи американской технической, технологической, инвестиционной, проектной, консультативной помощи.

Здесь в отечественной истории возникают три эпизода «практического фордизма», старательно замалчивавшиеся и извращавшиеся советской историографией. Первый, напрямую связан с Генри Фордом, второй – с архитектором, который спроектировал для Форда, фактически, все его заводы – Альбертом Каном, а третий – с архитектором, который в полном соответствии с фордовской идеологией, самостоятельно разработал технологию ускоренного поточно-конвейерного проектирования генеральных планов рабочих поселков и массового строительства типовых стандартизированных жилых домов в них – Эрнстом Маем.
Фордовская технология поточно-конвейерного производства в этот период оказывается остро необходимой советской индустрии. Правда, вовсе не для того, чтобы наполнять рынок товарами народного потребления и изготавливать, например, дешевые «народные» автомобили для рабочих и служащих. Она нужна для производства танков, танкеток, тягачей, грузовых автомобилей, самолетов, орудий, пулеметов, снарядов, патронов и другой подобной «продукции», крайне необходимой стремительно растущей Красной Армии. А также особого – «представительского» класса легковых автомобилей для высокопоставленных советских партийных, государственных и хозяйственных деятелей. Фирма Форда прекрасно подходит для этих целей, в том числе и потому, что имеет, как впрочем, и другие крупнейшие гражданские автомобильные фирмы США – Паккард, Кадильяк, Додж, Нэшенел и проч., довольно обширный опыт производства широкого спектра важнейших предметов вооружения, начиная с моторов, корпусов самолетов, танков, болванок снарядов, лафетов и кончая винтовочными штыками, потому что периодически получает на изготовления всего этого заказы от американского военного ведомства.

4 марта 1929 г. ВСНХ СССР издает приказ № 498, где говорится, что советское правительство приняло решение построить собственными силами современный автомобильный завод годовой производительностью 100 тыс. машин. Место постройки выбрано в районе деревни Монастырка под Нижним Новгородом (позже г. Горький), срок строительства определяется в 3 года (то есть завод должен вступить в строй в начале 1932 г.). Нижний Новгород избирается местом строительства завода потому, что полностью соответствует концепции промышленного районирования, которая в отношении уже освоенных районов[13] руководствуется четырьмя ключевыми параметрами: 1) наличие квалифицированной рабочей силы, 2) дешевизна подвоза сырья (в данном случае, водным путем), 3) наличие производственной связи с металлургической базой (в данном случае – уральской), 4) удаленность от государственных границ (т.е. защищенность от возможных воздушных и, тем более, наземных ударов вероятного противника). 

31 мая 1929 г. В Дирборне (США) между Г. Фордом и делегацией ВСНХ СССР подписывается соглашение об оказании технической помощи по организации и налаживании массового производства легковых и грузовых автомобилей[14]. Договор подписывается, с советской стороны, заместителем председателя ВСНХ СССР В. Межлауком и председателем «Амторга» С.Г. Броном, с американской стороны – самим Фордом[15]. Согласно договора, «Автосторой» получает от «Ford Motor Company» техническую помощь в виде планов, патентов, чертежей, необходимых для постройки и пуска нового завода, а также право на изготовление у себя моделей «Ford» и ежегодного обучения в США 50-ти инженеров, техников и мастеров (реальное число прошедших обучение было намного большим). В свою очередь, советская сторона принимает обязательство сообщать Форду обо всех улучшениях в его модели, которые будут введены нашими инженерами. Техническое сотрудничество определяется на довольно продолжительный срок – 9 лет[16]
Основу «советско-фордовской» производственной программы составляют модели грузовых автомобилей: «Ford-А» и «Ford-АА», а несколько позже и легкового – «Ford Model-B» (образца 1934 г.). А в широкий речевой обиход, наряду с уже привычными – «индустриализацией» и «электрификацией», входят новые модные слова – «фордизм» и «фордизация». Под «фордизацией» понимается не только создание в СССР современной автомобильной и тракторной промышленности, но и борьба за технический прогресс во всем народном хозяйстве, полный разрыв с работой по старинке.

Стране Советов нужен быстрый рывок в индустриальную эпоху. И путь, на который она встает, дает пусть разовый, но сильный эффект[17]. Вместо того, чтобы терять время и силы на самостоятельное изобретение конструкций грузовиков (а также танкеток, танков, тягачей, самолетов и проч.), соответствующих конвейерной технологии, советское руководство идет по значительно более быстрому пути – покупки знаний, опыта, производственного оборудования, проектов, консультаций, технических решений, готовых образцов, отдельных агрегатов и изделий. Руководство СССР планирует силами ассимилированного военно-гражданского производства выпускать танкетки на Московском (2-ой завод ВАТО), Ленинградском и Нижегородском автомобильных заводах[18], используя для этого автомобильные базы, двигатель, узлы и агрегаты грузового автомобиля «Форд-АА». Рассчитывает на основе закупленных за рубежом технологий «Интернационал», «Катерпиллер», изготавливать бронированные трактора; воспроизводить на Харьковском паровозостроительном заводе закупленный танк «Кристи» (советское маркировка – «БТ»)[19]; на заводе им. Ворошилова в Ленинграде (с привлечением завода «Красный путиловец») – танки «Виккерс» («Т-26»)[20]; Харьковском тракторном – средние танки; на заводах «Экскаватор», «Большевик», № 147 им. К.Е.Ворошилова – тяжелые; на Ярославском и Московском (АМО) автомобильных заводах – танки прикрытия[21]; на заводе «Большевик», Сталинградском тракторном – малые танки; на Челябинском тракторном, Харьковском паровозостроительном, Ижорском заводах – корпуса; на предприятиях Авиапрома – двигатели и т.п. При этом, все в большей степени заменяя закупленные за рубежом детали на узлы и агрегаты собственного изготовления, видоизменяя конструкции, приспосабливая к советским условиям и совершенствуя исходные образцы, а также разрабатывая на основе исходных – зарубежных, свои собственные модели.

А чтобы не откладывать на нескольких лет выпуск так остро необходимых Красной Армии танкеток, танков и артиллерийских тягачей советская сторона принимает решение закупить 72 тыс. комплектов деталей фордовских грузовиков на общую сумму 72 млн. руб.[22] и сразу, не дожидаясь ввода в строй автомобильного гиганта в Нижнем Новгороде, начать сборку легковых автомобилей «Форд-А» и грузовиков «Форд-АА». И пока идет стройка Нижегородского завода (она началась 2 мая 1930 г. закладкой первого камня), из закупленных у Форда комплектов налаживается сборка автомобилей на Московском автосборочном заводе № 2 ВАТО имени Коммунистического Интернационала Молодежи (впоследствии именовавшемся МЗМА, а затем АЗЛК)[23]

А параллельно с выпуском грузовиков, с самого первого дня заключения договора, планомерно осуществляется выполнение военных задач, значительно более приоритетных, чем гражданские. Так, в ноябре 1930 г. из сборочного цеха завода «Большевик» уже выходит первый образец гусеничной танкетки с автомобильным двигателем «Форд-АА» (вынутом из закупленных у Форда комплектов деталей). После того как выясняется, что фордовский двигатель, поставленный на танкетки, перегревается, уже в следующем году (1931) создается новые опытный образец (под индексом «Т-27»), который оснащается новым моторно-силовым агрегатом отечественного производства «ГАЗ-АА» – четырехтактным, четырехцилиндровым, жидкостного охлаждения, мощностью 40 л.с., с карбюратором типа «Форд-Зенит». С февраля 1931 г. согласно дополнению к секретной «Танковой программе», принятому Политбюро ЦК ВКП (б) 20-25% производственных мощностей Нижегородского завода отводится для выпуска танкеток «Виккерс» с фордовским мотором[24]. На базе автомобильных трансмиссий и двигателей «Форд-АА» 2-м заводом ВАТО производятся плавающие танки «Т-41» и «Т-37»[25]

В противоположность реконструируемому заводу «Гудок Октября», который сначала переоборудуется под ежегодную сборку 12 тыс. автомобилей из фордовских деталей, а потом включается в комплекс Нижегородского автомобильного завода, становясь его филиалом (ныне он является Горьковским заводом специализированных автомобилей – ГЗСА); 2-й завод ВАТО им. КИМ изначально строится как современное предприятие и рассчитывается на годовой выпуск 24 тыс. грузовых машин, а также производство значительных объемов военной техники. В 1931 г. «фордовская» автомобильная продукция составляла 80% автомобильного парка СССР[26]. Но постепенно фордовские детали и агрегаты изготавливаемых на заводе ВАТО и Нижегородском заводе машин как и было задумано, все в большей степени уступают место отечественным.

Грузовые автомобили на Нижегородском заводе, изготавливаются, прежде всего, для нужд армии; в 1935-1939 гг. их количество по отношению к легковым, составляет 8,5:1[27]. Все это прикрывается идеологической трескотней «заботы о трудящихся», о техническом оснащении народного хозяйства, что внешне выглядит вполне правдоподобно, ибо грузовики в мирное время распределяются в хозяйственный сектор, с заранее предписанными планами мобилизации их для армейских нужд в военное время. Лозунги об изготовлении советского «народного автомобиля» постепенно забываются, растворяясь в иных призывах и воззваниях. А те легковушки, которые производятся, направляются вовсе не «индивидуальным покупателям», они в рамках советской распределительной системы, предоставляются в пользование руководителям высоких рангов на время их службы.
Заводов-гигантов по производству военной техники сталинскому руководству страной нужно было очень много. Всего на первую пятилетку планировалось построить более 500 новых предприятий и модернизировать сотни старых. Строительство, наладка и пуск одного-двух, с помощью менеджеров компании Генри Форда и даже его самого, задачи не решало. А трудовой энтузиазм, смекалка и талантливость советских специалистов не могли исправить реальное технологические отставание, которое собственными силами никак не могло быть преодолено в те короткие сроки, которые выдвигал план ускоренной индустриализации. Руководство страной прекрасно понимало, что для выполнения огромных планов первой пятилетки нужно было в массовом порядке учить советских проектировщиков самим проектировать современные, оснащенные передовыми технологиями заводы, перенастраиваемые потом с выпуска локомотивов, тракторов и комбайнов на выпуск танков, орудий и патронов или изначально приспособленные для полноценного выпуска военной продукции. А, кроме того, нужно учить отечественных специалистов не только промышленному проектированию, но и такому же поточно-конвейерному строительству жилища для размещения возле военно-гражданских заводов 6 млн. новых рабочих рук – потребных этим заводам и запланированным на первую пятилетку (в реальности, их оказалось в два раза больше – 13,5 млн.).

И эта задача успешно выполняется, в частности, благодаря тому, что бригады Эрнста Мая и Альберта Кана сознательно и целенаправленно превращаются в центры распространения передового опыта и подготовки отечественных кадров – они «помещаются» внутрь советских проектных институтов, специально созданных для «снятия кальки» с их проектно-технологического опыта и 3-4 тыс. человек советских сотрудников (периодически заменяемых все новыми и новыми обучаемыми) постоянно контактируют с ними, практически вникая в суть западных проектных технологий, осваивая нюансы проектного подхода, усваивая способ мышления, перенимая формы организации процесса разработки документации и взаимодействия со смежными специалистами. 
Но история первых пятилеток, которая на протяжении нескольких десятилетий очень дисциплинированно (т.е. в рамках формулировок, допущенных официальной пропагандой) формировалась советской историографией, скрывала эти эпизоды практического «фордизма». Она замалчивала роль приглашенных в СССР, не только упомянутых нами американца А. Кана и немца Э. Мая, но и сотен других иностранных специалистов и фирм из десятка других стран. А если и упоминала, то лишь для того, чтобы возложить на них всю вину во всех неудачах. Реальный вклад иностранцев и реализацию планов первой пятилетки оставались белым пятном в истории советской индустриализации.

На протяжении всей истории России – начиная с времен Петра Первого, далее – в эпоху капитализма в дореволюционный период, потом в Советском Союзе и сегодня – в послеперестроечной, политически обновленной России, общественное и научное сознание обращалось и продолжает обращаться к передовому зарубежному опыту. И это нормально, потому что постоянный анализ мировых трендов развития, заимствование всего, что способствует собственному прогрессу, учет при построении собственных планов тех путей и стратегий, сообразно которым движутся другие страны – это правильная тенденция. Таким же необходимым условием придания реалистичности перспективному планированию, является понимание и учет специфики собственных условий и собственного интеллектуального, организационно-управленческого и социально-культурного потенциала. 

Изучение истории обращения к «фордизму» в 1920-1930-е гг. в Советском Союзе и осознание специфики и причин довольно своеобразного приложения идеологии и практики поточно-конвейерного производства к советским реалиям (и западной технической помощи, в целом), может явиться хорошим историческим уроком для тех, кто сегодня формирует планы очередного индустриально-технологического рывка России в будущее.


АЛЬБЕРТ КАН И ТЕХНОЛОГИЯ УСКОРЕННОГО ПРОЕКТИРОВАНИЯ ПРОМЫШЛЕННЫХ ПРЕДПРИЯТИЙ – НОВОСТРОЕК ПЕРВОЙ ПЯТИЛЕТКИ[28]

Альберт Кан родился в 1869 г. в г. Раунене (Германия) и в 1880 г. переехал в США вместе с родителями. Семья поселилась в Детройте, ставшем вскоре центром американской автомобильной промышленности. В 1902 г. архитектор Альберт Кан вместе с братом Юлиусом и позже присоединившимися к ним другими братьями – Луи и Морицем создал проектную компанию «Albert Kahn Associates, Inc.». И стал известен как крупнейший промышленный архитектор ХХ века, спроектировавший для фордовского концерна, практически, все его заводы с технологией конвейерного сборочного производства. Но хотя он известен как «архитектор Форда», на самом деле, сотрудником Генри Форда он не являлся. Он работал и по заказам любых фирм: «Дженерал Моторс», Шевроле, Олдмобиль, Кадиллак, Паккард, Гудзон, Крайслер и др., а кроме того, проектировал банки, храмы, больницы, библиотеки, особняки и проч. Он был гением изобретательства в организации строительного проектировании. Его интересовало каким образом можно изготовить проект быстрее, качественнее и с меньшими затратами. Широко известно его высказывание о том, что «промышленная архитектура на 90% состоит из бизнеса, и только на 10% из таланта». Этот тезис он воплотил практически, превратив свою собственную, достаточно крупную проектную контору в идеально отлаженный конвейер по изготовлению проектов. 

Технология ускоренной «индустриальной» (поточно-конвейерной) «сборки» проекта промышленного предприятия из стандартизированных и типизированных строительных конструкций (точно такая же, как сборка автомобиля на фордовском конвейере), позволяла А. Кану разрабатывать проекты гигантских автомобильных и тракторных заводов в немыслимо короткие сроки – не за 4-6 месяцев, а за 2-3 недели, а потом монтировать их не за 1,5-2 года, а за 3-5 месяцев. Она и явилась той инновацией, которая привлекла к нему внимание руководства ВСНХ СССР.
Высшее руководство Советского Союза, ставя в конце 1920-х гг. перед ВСНХ задачу выполнения плана индустриализации, т.е. проектирования и строительства современных военно-промышленных производств, а также обеспечивающих их энергетических, транспортных, цементных, металлургических, алюминиевых, станкостроительных, текстильных и проч. предприятий, вынуждено было обращаться к более технологически развитому, а главное, уже проверенному на практике опыту зарубежных стран в промышленном проектировании и строительстве. И, прежде всего, к американскому. Целью ВСНХ являлось создание собственных, отечественных, образцово-показательных, «модельных»[29] промышленных и промышленно-строительных предприятий. И, что было не менее важным, особенно для первого шага индустриализации – «модельных» проектных организаций. Образцовые строительные и промышленные предприятия должны были выступать в роли родоначальников новых отраслей, а также становиться центрами подготовки кадров; стимулировать развитие смежных и вспомогательных производств. А проектные – школами подготовки кадров проектировщиков для различных отраслей народного хозяйства; очагами распространения на всю общегосударственную систему проектного дела тех передовых зарубежных технологий производства проектных работ, которые удавалось адаптировать к отечественным условиям.

Власть предоставляет ВСНХ законодательные основания для «привлечения иностранных специалистов для работы в государственной промышленности, в частности, по проектированию» – 1 июня 1928 г. выходит постановление «О мерах по упорядочению капитального строительства промышленности и электростроительства»[30], содержащее раздел «Использование заграничного опыта и достижений иностранной техники», позволяющий привлекать зарубежных специалистов для работы в СССР.

Переговоры с Альбертом Каном ведутся от имени ВСНХ через фирму «Амторг»[31]. Во-первых, потому что наркомат военной промышленности, являвшийся основным «потребителем» советской индустриализации, не может выступать официальным заказчиком никакой легальной американской фирмы. А во-вторых, потому что в тот момент между СССР и США вообще не существует дипломатических отношений и «Амторг», является одной из специально созданных подставных контор, выполняющих военно-закупочные поручения советского правительства. Эти функции «Амторг» унаследовал от организаций, которые в середине 1920-х гг. осуществляли военно-стратегические закупки; например, импорт автотехники и станков для военных шел через «Автоимпорт»; закупка стратегического сырья (в середине 1920-х гг. медь, алюминий и цинк поставлялись из Америки) велась через «Главпромтрест»; функции официального импортного представителя для военного «Авиатреста» выполнял «Мотоимпорт» и т.п. В 1927 г. Автоимпорт, Мотоимпорт, Спотэкзак упраздняются, а вместо них в структуре Наркомата по военным и морским делам создается Отдел Внешних Закупок (ОВЗ), основным внешнеторговым «органом» которого и становится «Амторг». Формально, он является «частным акционерным обществом», а на самом деле, советской государственной организацией, играющей ключевую роль неофициального дипломатического и торгового посредника между СССР и США. 

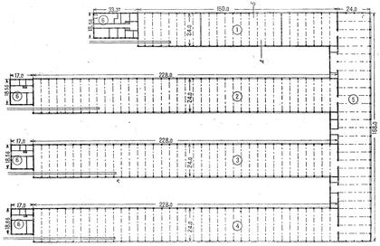
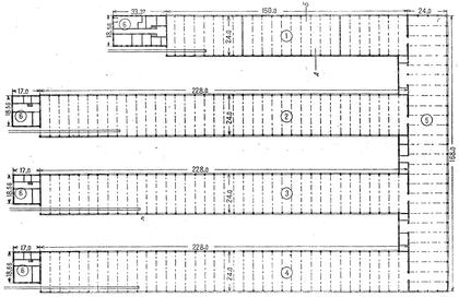
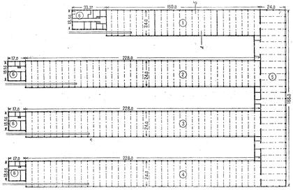
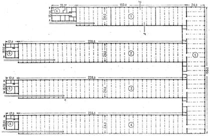
Договор с фирмой А. Кана на проектирование Сталинградского тракторного завода (СТЗ) заключается 8 мая 1929 г. Проектирование предусматривает разработку генерального плана завода, планировку отдельных зданий, разработку системы подъездных путей, системы электроснабжения, отопления и других взаимосвязанных составляющих огромного промышленного комплекса, пожалуй, самого мощного на тот период в мире. Но, что самое главное – помимо изготовления чертежей фирма А. Кана координирует действия более чем 100 американских фирм, обеспечивающих изготовление и поставку строительных конструкций, станков, оборудования. Все необходимые для сборки заводских цехов строительные конструкции закупаются или изготавливаются в США, а затем отправляются в Сталинград – через Черное море, потом по Волге и далее в 252 железнодорожных вагонах и длинными караванами верблюдов, лошадей, волов и грузовых автомобилей[32]. Завод собирается на берегу Волги, под наблюдением американских строителей и инженеров фирмы Кана, за немыслимо короткий, по советским меркам, срок – к февралю 1930 г.[33] (Рис.1). За эту работу, помимо оплаты всех фактических расходов, фирма получает вознаграждение в размере 130.000 долл.[34] (более полутора миллионов долларов в ценах 2012 г.[35])

9 января 1930 г. в Детройте, между Альбертом Каном и председателем «Амторга» Саулом Григорьевичем Броном заключается новый договор о технической помощи ВСНХ, согласно которому фирма А. Кана официально становится главным консультантом советского правительства по промышленному строительству (Рис.2).

В результате реализации этого контракта, за три года (с начала мая 1929 г. и по конец апреля 1932 г.) фирма А. Кана проектирует в СССР не только тракторные, но и авиационные, локомотивные, цементные, текстильные, консервные, станкостроительные, алюминиевые, приборостроительные и многие другие заводы; асбестовые, корундовые, графитовые, бумажные, обувные, прядильные, папиросные, фармацевтические фабрики; лесопилки, ангары, склады, электростанции, холодильники, доки т.п.[36]. По существу, А. Кан спроектировал значительную часть ассимилированной военно-гражданской промышленности Советского Союза.

Советская историография, посвященная промышленной архитектуры, практически никогда не освещала роль архитекторов в формировании советского военно-промышленного комплекса (ВПК). Считалось, что автомобильные, тракторные, вагоноремонтные, локомотивные и др. заводы проектировались исключительно как автомобильные, тракторные, вагоноремонтные и локомотивные. Жившим в советский период людям, привычным было знание о том, что на каждом из гражданских заводов мобилизационными планами предусматривался переход на выпуск военной продукции. Но никогда и нигде в специальной литературе не упоминался тот факт, что производство военной продукции предусматривалось на этих заводах сразу же, с первой минуты их пуска в строй, с первых котлованов, с первых чертежей. Сегодня эта страница истории отечественной архитектуры дозрела до своей проверки и, возможно, коренного пересмотра. 

Идея ассимиляции военного и гражданского производства не являлась исключительным изобретением сталинского военно-политического руководства. Но постепенно конкретизируясь под влиянием предложений военных специалистов, корректируясь на основе рекомендаций Главного Управления Военной Промышленности (ГУВП) она превратилась в весьма необычную модель. Она, вслед за американской моделью «кооперированных производств», основывалась на использовании советской гражданской промышленности в военных целях. Правда, почти тотальном использовании – развертывании на заводах гражданского профиля выпуска широчайшего спектра, собственно, военной продукции, как в законченном виде, так и в виде отдельных полуфабрикатов. 
Например, для изготовления военного изделия, именуемого «выстрел», на гражданских заводах предлагалось изготавливать основные составляющие – гильзы, корпусы снарядов, капсюли, взрыватели, дистанционные трубки, тротиловые заряды. Или например, выпускать на гражданском производстве компоненты такого военного изделия, как «система орудийного огня» – орудийные тела, лафеты, передки, оптические приборы. По отдельности все эти комплектующие не образовывали еще конечного «военного продукта», они превращались в него лишь в специализированных сборочных мастерских или на особых заводах ВПК, где вместе с другими «специализированными военными полуфабрикатами», изготавливаемыми на специальных военных заводах, собирались в законченное «военное изделие».

Но в отличие от американской модели, советскую военную компоненту предлагалось не просто «подвязывать» к системе существующих гражданских производств, за счет размещения на них военных заказов, а, наоборот, возведение гражданских фабрик и заводов планировать и осуществлять исходя исключительно из потребностей военной промышленности. Т.е., сначала, намечать постройку тех предприятий, которые необходимы для выпуска военной продукции и уже на основе этой базовой структуры производств, развертывать, соответствующие их технологическому профилю, гражданские заводы по изготовлению комплектующих для военной продукции. Именно этот подход (полного изначального подчинения гражданской промышленности военному производству) стал базовой инновационной доктриной формирования советского военно-промышленного комплекса.

Решение изначально создавать гражданскую промышленность так, чтобы еще до войны она на постоянной основе содержала функционирующий военный компонент, является ключевым для понимания механизма формирования советского ВПК, запущенного планом первой пятилетки. В этом смысле, идея формирования военно-гражданских предприятий, оказывается разительно схожей с реализованной в СССР еще в самом начале 1920-х гг. идеей Л.Д. Троцкого по созданию трудовых армий, состоявших из обычных стрелковых соединений, кавалерийских, артиллерийских и других частей, но использовавшихся в мирное время для принудительного отправления трудовой деятельности. Сохранявших, при этом, способность к стремительному переходу в состояние боевой готовности при возникновении военной угрозы. Только здесь, с точностью до наоборот, гражданские предприятия изначально включались в выпуск военных изделий и пребывали в состоянии готовности к полному переходу на военные рельсы.
Согласно этой доктрине, тракторные, автомобильные, авиационные и многие другие заводы уже с самого начала, создаются как военные, а гражданская компонента рассматривается лишь как элемент системы «ассимилированного военно-гражданского производства». Подобное решение позволяет практически воплотить грандиозные планы советской милитаристской программы, тем, что уже в мирное время помещает основные виды военной продукции в постоянную отработку на гражданские производства, начинающие производить основной объем военных полуфабрикатов.

В отношении слияния военного производства с обычным мирным производством, следует различать: а) размещение на гражданских производствах выпуска некоторых категорий военных изделий, которое не является ассимилированным; и б) общее изначальное использование всего гражданского промышленного аппарата для обслуживания военных нужд, собственно, (и являющееся «ассимилированным», положенным в основу советской «мобилизационной» стратегии. В ее рамках многие предметы армейского потребления, такие, например, как обувь (валенки, сапоги), палатки, консервы и проч. исходно создавались такими, чтобы иметь двойное употребление – являться, одновременно, военными и гражданскими. Они, как и некоторые военные предметы и оборудование (военные изделия, так называемой, третьей группы) – средства связи и маскировки, понтоны, интендантское имущество, специальный инструмент, электротехническое и железнодорожное оборудование и т.п. производились не специально предназначенными для этой цели военными предприятиями, а целиком изготавливались соответствующими мирными фабриками – текстильными, обувными, электротехническими и прочими сразу в законченном виде.

Ассимиляция военных и гражданских производств, лежащая в базисе советской индустриализации, позволяла обеспечить: 
Во-первых, взаимодополняемость и даже взаимозаменяемость военных и гражданских фабрик и заводов.
Во-вторых, возможность, в случае необходимости, быстрой адаптации гражданских рабочих кадров к военному производству, потому, что в составе производственного коллектива постоянно присутствовали квалифицированные мастера по производству военной продукции, способные, в случае необходимости, осуществить в короткие сроки ускоренную переподготовку гражданских специалистов.
Например, на абсолютно гражданской швейной фабрике, изготавливающей вполне мирную продукцию существует цех, постоянно шьющий армейские плащ-палатки. И запас брезента имеется, и ниток, и в штате состоят мастера и работницы, освоившие технологию изготовления плащ-палаток. С началом войны за мастерами в качестве учеников, закрепляются по 10-15 других мастеров, работавших рядом – в других цехах; они такие же опытные, но только раньше не имели дела с изготовлением подобной продукции. Эти мастера почти мгновенно «переучиваются» на выпуск данного вида изделий и фабрика целиком тут же переходит на изготовление плащ-палаток. Тот же процесс происходит и в отношении рабочих – работники оборонного цеха, почти мгновенно переучивают своих коллег изготовлению данного вида продукции. После чего «старые» мастера и «старые» рабочие берут в обучение новеньких, неопытных, пришедших с улицы – призванных по трудмобилизации и начинают (уже в более длительный срок) обучать их ремеслу в целях расширения объемов производства и замены работников, призываемых на фронт. 
В-третьих, способность во время войны многократно наращивать объемы выпуска военной продукции, за счет относительно небольших дополнительных затрат (в частности, за счет перехода на двух- или трех сменный график работы). 
В-четвертых, возможность ввести единые сортаменты и стандарты для военной и гражданской техники (например, единые стандарты для отдельных частей и элементов трактора и легкого танка, автомобиля и броневика, гражданского и военного самолетов и проч.), позволяющие превращать детали и комплектующие во взаимозаменяемые.
В-пятых, возможность лавинообразно расширить для вероятного противника список военных целей, «растворив» военные объекты в массе «гражданских» – враг лишался возможности намечать конкретные военно-промышленные цели и оказывался перед необходимостью осуществлять трудоемкие и съедающие массу военных ресурсов ковровые бомбежки всех подряд промышленных территорий и производственных объектов, в том числе и огромное количество гражданских объектов, потому что все они оказывались «немного военными».
В-шестых, не держать в мирное время в «мертвом» состоянии огромные человеческие, материальные и прочие ресурсы, предназначенные для военной сферы.

Вот для решения этой глобальной задачи и были приглашены американские специалисты. Но изначально они не были посвящены в военную составляющую своей гражданской технической помощи. Во всяком случае, когда в ноябре 1942 г., за несколько недель до смерти Альберта Кана его близкий друг, главный редактор «Detroit Free Press» Malcolm W. Bingay, спросил его о том, знал ли он о военном предназначении проектировавшихся им тракторных заводов, А. Кан припомнил, как спорил с советскими заказчиками, которые настаивали на использовании чрезмерно крупных фундаментов, избыточно мощных кранов и дополнительно усиленных стальных несущих конструкций по всей длине цехов; говоря им, что это совершенно ненужный перерасход материалов, финансов и сил. Но они, «с улыбкой рассказывали ему о суровых российских зимах». В эти минуты он думал, что «все они просто сумасшедшие». Мориц Кан был первым, кто выяснил подлинную причину подобного требования: «Альберт, – говорил он, – эти люди вовсе не сошли с ума. Они строят военные заводы, но не хотят, чтобы мы знали об этом …». Вспоминая этот эпизод, Альберт Кан говорил о том, что никогда ни единым словом русские «… не выказали своих военных целей»[37].

Анализ того, как советским проектировщикам удавалось в тайне от американских специалистов, фактически, параллельно с разработкой комплектов чертежей, в кратчайшие сроки решать сложнейшие задачи совмещения в одном генплане двух очень разных технологий военного и гражданского производства (потому, что выпуск военной и гражданской продукции шел на этих заводах одновременно, фактически, с первого дня), соорганизовывать в единой пространственной структуре процессы перемещения различных видов грузопотоков (обычных и «засекреченных»), передвижения обычных и военных контингентов рабочей силы, изначально решать вопросы ускоренной «перенастройки» конвейера с изготовления тракторов на производство танков и т.п., позволит вычленить уникальный опыт, имеющий сегодня не просто академический исторический интерес, но и огромное организационно-управленческое и педагогическое значение.

Подтвердив свою способность стремительно проектировать заводы, и успешно обеспечивать контроль над строительно-монтажными работами, фирма А. Кана, после подписания нового контракта, получает задание спроектировать Челябинский тракторный завод (Рис. 3,4,5), предназначенный для производства тракторов «Катерпиллер», экземпляр которого, доставленный на пароходе из США, уже в течение нескольких месяцев, разобрав по винтику, старательно изучают советские инженеры в здании ленинградского Гипромеза.

Договор от 9 января 1930 г. предполагает, что 25 кановских сотрудников прибудут для постоянной работы в Москву, а параллельно, Стройобъединение ВСНХ СССР отправит в Детройт свой инженерно-технический персонал также в количестве 25 человек, который будет работать совместно с американскими консультантами[38]. Эти специалисты, прибывшие в Америку в конце апреля 1930 г. (правда, их в Америку приехало почти в два раза больше – не 25, а 40 человек), совместно с 12 американскими инженерами и составляют основной штат проектного бюро «Chelyabinsk Tractor Plant»[39], разрабатывающий технологический процесс Челябинского тракторного завода. 

Любопытно, что об этом событии журнал «Строительство Москвы» сообщил аж за три месяца до момента официального подписания договора – в ноябрьском номере за 1929 г.: «Фирма «Альберт Кан» организует … в Москве проектную контору, где советские инженеры, совместно с командированной в Москву группой американских инженеров-строителей, будут выполнять проектные работы по крупнейшим объектам нового строительства. ВСНХ СССР предоставляется право командировать в Америку группу советских инженеров для ознакомления на крупнейших стройках с новейшими американскими методами строительных работ»[40].  

Советская проектная контора, о которой писал журнал, была создана решением Президиума ВСНХ СССР одновременной с проектным бюро в Детройте – 5 марта 1930 г. Ею стал трест Госпроектстрой – Государственный трест строительного проектирования ВСНХ СССР[41]. Он предназначался специально для проведения совместных работ с фирмой «Albert Kahn Associates, Inc.».

Группа из 25 американских инженеров приехала в Москву в мае 1930 г. Она состояла из: главного архитектора; шести архитекторов, специализирующихся в различных типах индустриальных зданий; главных инженеров по технологии строительства и расчетов; главных инженеров по отопительному оборудованию, вентиляция, слесарному делу, канализации, электрическим системам и системе управления, а также нескольких помощников[42]. Руководил группой Мориц Кан. Американские специалисты, прибывшие в Москву, сразу включились в состав, стремительно развертывающего свою деятельность треста Госпроектстрой, который довольно быстро стал самой большой проектной организацией мира.

Первоначально намечалось, что с американскими архитекторами будут сотрудничать около 100 советских проектировщиков, однако, уже в 1932 г. в составе треста Госпроектстрой-1. работало более 2,5 тыс. сотрудников, причем, это был непрерывно обновляющийся состав специалистов. Числовую приставку «1» трест получил 22 марта 1931 г. (приказ ВСНХ СССР № 158) в связи тем, что из его состава выделилась другая проектная организация – Госпроектстрой-2, укомплектованная советскими специалистами, за год совместной работы с кановскими архитекторами и инженерами, уже овладевшими американской технологией промышленного проектирования и умеющими работать по ней совершенно самостоятельно – проектируя сооружения других важнейших отраслей военно-промышленного комплекса: химической, авиационной, текстильной, резиновой[43].

Через Госпроектстрой, в целях обучения поточно-конвейерному способу изготовления проектной документации, за три года совместной деятельности с фирмой Альберта Кана, было «пропущено» в общей сложности около 4,5 тыс. советских инженеров и техников, впоследствии занимавших ответственные посты в государственной системе архитектурно-проектного дела. 
В феврале 1932 г. Госпроектстрой-1, реорганизуется в трест Металлостройпроект[44], который после отъезда американцев – 29 апреля 1932 г., теперь уже вполне уже открыто, не пряча своего истинного предназначения, начинает обслуживать потребности ВПК. Для таких «военно-гражданских» объединений тяжелого машиностроения как: ВОМТ, Восхим, «Локомотив», Вагонотормозное, Дизельное, «Котлотурбина», ВАТО, Союзверфь, Речсоюзверфь, ВОАО, РУЖ, Снарядный трест, «Патрубвзрыв»[45]; Металлостройпроект либо разрабатывает новые проекты, практически применяя уже полностью адаптированную к советским условиям технологию поточно-конвейерного промышленного проектирования, либо тиражирует проекты, которые были ранее изготовлены с участием американцев, привязывая их ко все новым и новым местам.

Альберт Кан не был посвящен в сверхзадачу, возложенную руководством ВСНХ на сотрудников его фирмы (негласно и незаметно для них самих) – обучение максимально широкого круга советских специалистов. Он был обескуражен постоянной «текучкой» кадров – заменой советских сотрудников, некоторое время поработавших и чуть-чуть поднабравшихся опыта, на других, совсем не опытных и абсолютно не квалифицированных. Он был удивлен постоянным привлечением к работе студентов, пусть и способных, но мало что умеющих делать. В своем письме председателю Союзстроя Н.П. Комарову А. Кан писал о советских специалистах: «… очень немногие являются опытными, большинство ... имеет небольшой стаж, а многие являются просто учениками ... . Если бы какая-либо деловая организация в Соединенных Штатах или в какой-либо другой стране имела такой состав работников, то не прошло бы и нескольких месяцев, как эта организация потерпела бы банкротство»[46]. Он не предполагал, что все это делается специально и «педагогическая» компонента ля руководства ВСНХ намного более важна, чем финансовая выгода от использования высококвалифицированных специалистов. И не менее важна, чем непосредственное проектирование гигантских тракторных, металлургических, цементных, станкостроительных и проч. заводов, потому, что ВСНХ заблаговременно готовясь к завершению американской помощи, массово натаскивало отечественные кадры к дальнейшей самостоятельной работе. 

Перенос американского опыта поточно-конвейерного проектирования промышленных предприятий на советскую почву и адаптация его к отечественным условиям проектного труда был непрост. О полном «калькировании» проектной деятельности, т.е. о непосредственном воспроизведении американского прототипа организации проектного процесса, о прямом заимствовании его содержания не могло быть и речи, настолько несхожими были и условия работы, и техническое обеспечение проектной деятельности, и сама философия проектирования, и состояние базы стройиндустрии, и характер кооперации между различными дисциплинарными разделами проекта, и квалификация исполнителей, и многое–многое другое.  

Заимствование американского опыта шло по трем направлениям: 1) разработка проектов промышленных предприятий (конструктивных решений, узлов, элементов, деталей, технологии строительства и т.п.), обеспечивающих возведение цехов предельно ускоренными темпами; 2) приложение организации процесса проектирования (административного устройства проектной конторы, распределения ролей, организации процесса принятия решений и изготовления проектной документации, формата взаимосвязи со смежниками и т.п.); 3) копирование состава чертежей и способов их оформления (состава проектной документации, характера детализации, особенностей состыковки различных разделов и т.д.), обеспечивающих упрощение и, как следствие, ускорение изготовления проектно-сметной документации.

Безусловно, текущая разработка проектов конкретных фабрик, заводов, цехов, складов, элеваторов и т.п. была ведущей задачей. Она основывалась на воспроизведении уже готовых американских конструктивно-технических решений. Это было несоизмеримо проще и быстрее, нежели самим изобретать заново давно уже изобретенные. Подобное копирование позволяло советскому ВПК стремительно осуществить «индустриальный скачок» – перепрыгнуть стадию постепенного накопления технического и материального потенциала, которую давно прошли западные страны и, фактически, единомоментно поставить советскую экономику в один уровень с ведущими экономическими державами мира.

Речь шла не только о заимствование конструктивных решений таких крупных элементов, как большепролетные фермы перекрытий с фонарями верхнего освещения, или металлические колонны, рассчитанные на оптимальные расстояния между собой (шаг колонн) для разных функциональных частей здания (сборочного конвейера, вспомогательных цехов, складских помещений, бытовок и т.п.); или поперечные сечения железобетонных опор с раскладкой арматуры; фундаментные башмаки и прочее. Но и о таких мелких, которые были незаметны на фоне огромных пролетов гигантских цехов, но неотъемлемы для любого производственного сооружения, жизненно важны для его эффективной эксплуатации – деревянные переплеты окон, которые, если приниматься за их проектирование, оказывались не менее сложными инженерными конструкциями, чем гигантские металлические фермы перекрытий; механические тележки для очистки фонарей, баз которых обойтись было никак невозможно, или ворота – прочные и теплые, максимально экономичные по расходу материала, с петлями (или роликовыми подвесами), выдерживающими вес створок, не допускающими перекосов и продувания и многие-многие другие. (Рис. 6,7).

Архитектор А.К. Буров, командированный в Детройт для знакомства с американским проектным опытом, увидевший кановские чертежи, писал: «Сегодня мне удалось видеть чертежи деревянных заводских окон. Вопрос, над которым и я, и мы все очень много бились. Узнал в одни день кучу вещей очень простых, но очень существенных … »[47].

Другой, не менее важной задачей являлось апробирование и отбор иностранных технических решений для их последующего массового применения в советском промышленном проектировании. Эта работа также являлась весьма непростой, ибо требовала отсортировывать решения, пропуская их через «фильтр» возможностей изготовления и употребления в условиях СССР. С самого начала было очевидно, что будет невозможно достигнуть на советской стройке той точности в допусках, которая была обычной для американского производства строительных конструкций. А это означало, что ручная доводка конструкций и строительных изделий (ферм, колонн, фундаментных стаканов, оконных фрамуг и т.п.), с неизбежностью сведет на нет главные преимущества типизированного, стандартизированного массового изготовления и монтажа – скорость, простоту дешевизну. Необходимость «подгонки по месту» вернет конвейерное производство элементов зданий и, соответственно, поточное возведение самих зданий к доиндустриальным, «штучно-ремесленным» способам строительства.

Нужно было «усреднить» инженерно-технические решения, применявшиеся в заокеанской практике, отобрать такие, которые не требовали бы предельной точности изготовления, способной поставить под угрозу производство и использование этих инженерных изделий в СССР из-за несоответствия чересчур жестких американских стандартов реалиям советского производства. Результатом переработки американских решений и приспособления их к отечественным условиям строительства и возможностям базы стройиндустрии, явилась разработка первых отечественных типов промышленных зданий и первой серии госстройпроектовских типовых узлов и деталей промышленных зданий (серия ТД)[48]. Поперечный, не открывающийся фонарь, прототип которого был ранее заимствован из германской проектной практики, уступил в них место продольному, открывающемуся фонарю американского типа, что позволило осуществлять сплошную застройку, доводя площадь цехов до 8 гектаров[49]

«С 1930 г. … американские методы возведения легких, стандартных одноэтажных зданий приобретают у нас широкое распространение. Магнитострой, Кузнецкстрой, Уралмашстрой, Азовсталь, Запорожсталь, Шарикоподшипникстрой, ХТЗ, ЧТЗ, Краммашстрой, Луганстрой и многие другие крупнейшие новостройки Союза осуществляются … с применением американских методов. Не только тяжелая, но пищевая промышленность идет по тому же пути. Мясокомбинаты в Москве и Ленинграде построены на базе освоения американской техники»[50]. Изданная в 1932 г. книга «Фабрично-заводская архитектура»[51], донесла до нас итоги переложения зарубежных конструктивно-технических решений на советскую почву – она переполнена словосочетаниями: «металлическая колонна американского типа», «железнодорожные ворота американского типа», «тележка для очистки стекол американского типа», «ферма американского типа», «железобетонный башмак американского типа» и т.п., то есть, теми образцами, которые были апробированы, «очищены» от «избыточной» точности, приведены в соответствие с наличными материалами и возможностями «исполнителя» – советской базы стройиндустрии.
Но основная сложность приложения американской технологии проектирования к советским условиям, заключалась в другом – в противостоянии двух совершенно различных проектных подходов и более глубоко – двух профессиональных мировоззрений: а) «творческого», б) «производственного». Промышленное проектирование в предреволюционной России основывалось либо на приоритете технологии, которая диктовала размеры и высоту корпусов, шаг колонн, размещение цехов по территории завода, трассировку транспортных путей и многое другое (технология, как бы «обрастала» архитектурой), либо на художественно-образных началах, предопределявших внешний вид промышленного здания (архитектура решала эстетические, стилистические, имиджевые задачи).

В СССР в период 1920-1930-х гг. не существовало единых, стандартов на строительные параметры промышленных зданий. Отсутствовала модульная координация отдельных частей зданий. Проектные решения принимались ситуативно. И, например, шаг несущего каркаса выбирался каждый раз по-новому, исходя из несущей способности металлических или бетонных конструкций. Он мог быть 4,5 м., 5,0 м, 5,2 м., 5,5 м., потому что расположение колонн было следствием расстановки оборудования, а не итогом выбора определенного типа конструктивной системы: «Как расстанавливает колонны внутри заводского здания наш советский архитектор? Обычно это делает не он, а технолог. Архитектор, слепо следуя за ним, создает лес неритмично расставленных опор, без учета пролетности для рационально работающих верхних перекрытий. В результате – перерасход дерева, при больших пролетах – недобор напряжений при железобетоне … Вопросы перекрытия дебатируются целыми коллективами разнородных специалистов; типизации наружных стен нет»[52]

Советские проектировщики в сравнении с американскими в этот период всё делали с точностью до наоборот. В условиях, когда трудоёмкость строительных работ из-за дешевизны рабочей силы, принципиального значения не имела, а стоимость строительных материалов, напротив, нужно было постоянно сокращать из-за требования экономии, они добивались снижения расхода дефицитных стали и бетона, скрупулёзно рассчитывая каждую ферму и балку. Чертежи вручную, так как светокопировальные машины отсутствовали, переносили с ватмана на кальку, что отнимало массу времени, не гарантировало от ошибок и увеличивало себестоимость проекта[53].

Дореволюционной российской традиции проектирования промышленных зданий была свойственна гипертрофированная «творческая составляющая», которая основывалась на стремлении архитекторов постоянно отходить от устоявшихся проектных решений, избегать повторения сложившихся схем, искать новый художественный облик зданий. Подобный подход требовал глубокой и детальной проработки каждого нового проекта и приводил как к значительному увеличению объемов проектной документации, так и увеличению сроков ее исполнения. «Чертеж советского архитектора носит на себе подпись всех лиц, принимавших участие в проекте. Архитектурные моменты переплетаются с конструктивными. Персонально-юридически отвечающего лица нет. (…) Одни и те же размеры повторяются везде, где их можно втиснуть. Чем гуще насыщен лист, тем лучше – добросовестней исполнитель»[54]. В итоге, «каждый проект превращался в своего рода научный трактат, где практическая сторона дела тонула в море вычислений, формул и доказательств. … проекты заводов, вместе с докладными записками весили по нескольку сот пудов»[55]. А подчас занимали полный кузов трехтонного автомобиля[56]. Как следствие, в советской практике тех лет, продолжавшей дореволюционный подход, необходимость каждый раз заново рассчитывать конструкции, приводила к тому, что на одного архитектора, принимавшего пространственно-компоновочные решения, приходилось до 12 инженеров эти решения разрабатывающих и обсчитывающих. А в американской практике, многократное применение стандартизированных планировочных решений и типизированных конструкций, позволяло уменьшать количество конструкторов, «обслуживающих» одного архитектора втрое-вчетверо – до 3 человек[57]. Исправление подобного «перерасхода» специалистов, которых и без того катастрофически не хватало в советских проектных институтах, было одним из ожидаемых результатов заимствования американского опыта.

К искусству традиционного архитектурного формообразования, понимавшемуся как «творчество», деятельность фирмы Альберта Кана имела весьма отдаленное отношение. А точнее – никакого. Альберт Кан предложил диаметрально противоположный подход – он пошел не от технологии к архитектурной форме, а от универсального пространства – к размещению технологии. Он придумал способ быстрого создания из стандартных деталей такого универсального строительного объема, в который затем мог вписываться, практически без проблем, любой производственный процесс. Особенность его подхода заключалась в создании внутрицехового пространства за счет крупноразмерной стандартной сетки пролетов на железобетонных или металлических колоннах, шагом 12х12; 15х15; 24х24 м. и т.п., кратному трем метрам. Эта задача не являлась столь простой, как это может показаться на первый взгляд, т.к. нужно было принимать такие решения, которые не допускали бы избыточного пространства (т.е. пустого, не занятого технологическими процессами) и, как следствие, перерасхода материалов и средств; которые изначально учитывали бы взаимосвязь основного производственного процесса и всех вспомогательных (бытовых, административных, транспортно-коммуникационных, складских и проч.).

Если в отечественной проектной практике, собственно, формообразование фасада производственного здания и художественные достоинства его изображения традиционно играли ведущую роль, то на чертежах кановской фирмы фасады выполнялись условно – на них изображался не внешний вид, который был не очень-то и важен, а способ «раскладки» по наружной стене «составляющих» ее типовых элементов – переплетов окон, перемычек, дверных полотен, ворот и т.п. (Рис.8). Американский архитектор «…идя от технологического процесса производства, … мало заботится о наружном облике стен. Большая часть работ американского архитектора протекает в разрешении задач плана, а не фасада. Последнему он уделяет внимание лишь постольку, поскольку он является рекламой и не идет в ущерб производственному процессу. … американец … оставляет незаконченными заполнения оконных отверстий, вырисовывает пунктиром на двух-трех типовых пролетах фундаменты; показывает условными обозначениями способы раскрывания окон, температурные швы, пунктиром – линию полов, номера ворот, дверей, лестниц, вентиляционных камер и общую нумерацию или литературную маркировку простенков …»[58]

Типовым в американском проекте было все – окна, фонари верхнего освещения, двери, ворота, водостоки, душевые кабины, подкрановые фермы, балки, фермы перекрытий, колонны, фундаментные стаканы и т.д. и т.п. Все это не чертились, не рассчитывались и не изготавливались применительно к каждому проекту, а поточно выпускались строительной индустрией по определённым типоразмерам. Наличие сортамента готовых элементов отменяло потребность в подробных рабочих чертежах. Строительные конструкции лишь подбирались по каталогам и складывались воедино – таким образом «конструировались» проекты конкретных цехов, а из них, опять же, по стандартным схемам из взаимосвязи, «компоновался» затем и весь завод.

Все это становится возможным благодаря особому способу представления проектного содержания – составу чертежей, масштабам представления изображений, приемам маркировки и образмеривания, характеру комплектования чертежей в единый проект, процедурам согласования и утверждения и т.п. В частности, в американской практике обязательной была, отсутствовавшая в СССР, стандартность оформления чертежей. Если, в отечественном проектировании в этот период «лист архитектурного чертежа собирал в себе самые разнохарактерные моменты проектирования; фасад совершенно спокойно уживался с поперечными разрезами, детали разреза – с планом; все сделано в разных масштабах и разными способами графического изображения»[59], то в американских проектах план, разрез, фасад, детали располагались в определенной последовательности. На всех листах задавалась единая рамка, каждый аспект проектирования изображался на отдельном листе (или группе листов), каждому листу присваивался свой порядковый номер, к которому в случае необходимости, отсылались (за счет указаний в текстовом примечании) лица, изучающие чертежи[60]. Если в отечественной практике проектирования план делался в большом масштабе в целях показать как можно больше деталей, в результате чего получался сильно раздутый лист с подклейками, достойный украшать стены солидных контор, но неудобный на производстве[61], то на американских чертежах план, разрез, фасады выполнялись в строго определенных масштабах – 1:400 - 1:200; «типовые места» – в масштабе 1:50, а детали – в масштабах 1:20 - 1:10[62]. Кроме этого, обязательным являлось требование ориентировать план по сторонам света и двум координатам, причем, для упрощения восприятия, осям абсцисс придавалось цифровое, а осям ординат – буквенное обозначение[63]. Для промежуточных опор вводились дробные обозначения или двухбуквенные[64]. Все элементы – двери, ворота, перемычки, лестницы, оконные переплеты, уборные, душевые кабины, вентиляционные камеры и проч. нумеровались[65]. «Преимущество этого способа незаменимо. Имея две координаты и номер вы любую вещь найдете в самом запутанном чертеже. Нумеруются детали поперечных сечений, и ничего нет удивительного, если, перелистывая американский проект, наткнетесь на деталь № 435, которую найти легче иголки, потому, что под этой цифрой в знаменателе стоит номер одного или нескольких листов, где она встречается»[66]

Подобное обозначение и нумерование имело решающее значение для ясности представления информации и упрощения использования чертежей. Причем, в американской практике «компоновочные», сборочные, монтажные чертежи выполнялись в карандаше (что было многократно быстрее, чем тушью) и размножались на светокопировальных машинах. Чертежи готовились и утверждались одновременно с рытьём котлована, строительные конструкции заказывались по телефону и доставлялись прямо к началу строительства. 

Огромных организационно-управленческих и интеллектуальных усилий требовало осмысление того, как заполнить разрыв между двумя очень разными школами в проектировании промышленных объектов – инновационной американской, «конструирующей» проекты в результате сборки их из стандартных, повторяющихся элементов инженерных конструкций, с одной стороны, и, с другой, традиционной российской – основанной на штучном проектировании каждого здания, на индивидуальном» подходе к каждой проектной ситуации, на изготовлении строительных конструкций «по месту». Сложность «привязки» американской технологии проектирования к советским условиям в значительной мере была вызвана тем, что она происходила в ходе непосредственной реальной работы над конкретными проектами. А также тем, что стремление превратить проектирование промышленных предприятий из «творчества» в серийное, поточное «производство», основанное на стандартизации промышленных изделий и строительных конструкций, упиралось в подспудное сопротивление со стороны советских архитекторов. Американский проектный «business», заменявший «творчество» поточным «производством», «инженерным конструированием», вызывал реакцию резкого неприятия со стороны российской идеологии «архитектурного проектирования». Так, А.К. Буров, познакомившийся в 1930 г. во время своей командировки в США с организацией работ в фирме А. Кана, писал об американской организации проектного дела совсем без восторга, как о чем-то явно неприемлемом для советской архитектуры[67].

В апреле 1932 г., как мы отмечали, контракт с фирмой «Albert Kahn Associates, Inc.» был прекращен, и ее сотрудники покинули Москву. Это было связано с государственным перемещением заказов на оборудование для строящихся промышленных предприятий из Америки в Европу. Объекты, спроектированные Альбертом Каном, продолжали строиться и представляли собой значительную часть реализации планов второй и третьей пятилеток. 

Несмотря на то, что конкретно-историческая роль А. Кана в создании советской общегосударственной системы промышленного проектирования остается основательно затушеванной и практически совершенно не изученной, можно утверждать, что он является основоположником не только проектного метода, после окончания контракта с ним повсеместно принятого в СССР к массовому использованию, но и основателем организационной структуры государственных контор промышленного проектирования, так как в конце 1931 г. проектные организации всей советской промышленности реорганизуются «по типу Госпроектстроя» – так прямо и указано в соответствующем постановлении[68]. К этому времени, после полутора лет работы американцев в Советской Союзе, общепризнанной становится необходимость: а) отделения технологического проектирования от строительного (промышленного, жилищного, культурно-бытового), а, тем более, от специальных работ (водопровод, канализация, энергоснабжение и т.п.); б) дифференциации технологического проектирования по типам зданий и сооружений; в) наличия специалиста-технолога (главного инженера), основной обязанностью которого является увязывание всех профильных проектных решений в единый комплекс и ответственность за согласованность частей проекта; г) наличия «организатора» проектного процесса, обеспечивающего согласованность протекания процесса проектирования в увязке с заказами станков и оборудования, строительных конструкций, машин и механизмов и т.п.
Накопленный в сотрудничестве с американцами опыт как раз и дает возможность СТО – главному руководителю работ по формированию советского военно-промышленного комплекса, отдать приказ о реформировании всей системы советского промышленного проектирования: «Провести к 15 декабря 1931 г. реорганизацию сети институтов и контор по технологическому проектированию на следующих основаниях: … создать ряд контор по строительному проектированию, типа Госпроектстроя, на которые возложить изготовление строительных проектов по всем отраслям промышленности … для руководства проектированием объектов … выделять специальных старших инженеров, ответственных за проект в целом…выделять специальных уполномоченных по каждому объекту для увязки сроков проектирования, строительства, монтажа и заказа оборудования»[69].

Пригождается и американский опыт координации проектных работ и комплектовки технологического оборудования: постановление вводит новый порядок составления и утверждения промышленных проектов, предписывая разработку на начальной стадии двух видов заданий: 1) планового и 2) проектного. «Плановое задание» должно было разрабатываться соответствующими отраслевыми объединениями, переводящими установки пятилетнего плана в вид конкретных указаний на район расположения будущего объекта, его производительность и т.п. На основе «планового задания» формировалось «проектное задание», которое (на основе экономических, технических, геологических и др. изысканий; данных о наличии сырья, топлива, электроэнергии, воды, транспорта и проч.) оценивало техническую возможность и экономическую целесообразность строительства данного предприятия в данном месте. После утверждения проектного задания в ВСНХ (или соответствующим отраслевым объединением), проектное задание становилось основой работы отраслевой технологической проектной конторы, которая при участии строительных и специальных проектных организаций, составляла «технический проект», в котором детально разрабатывались: технологические процессы, состав оборудования, вопросы организации труда, транспорта, общие схемы планировки отдельных сооружений, список строительных материалов, тип освещения, отопления, водопровода, канализации, планировки жилых поселков, типы жилых зданий и культурно-бытовых сооружений, укрупненные сметы и ориентировочный календарный план[70].

Постановление также отменяло практику исчисления стоимости проектирования в процентах от стоимости будущего строительства и предписывало ВСНХ ввести такой порядок оплаты труда проектировщиков, который стимулировал бы их заинтересованность в снижении (а не в завышении) стоимости строительства.

Постановление вводило стандартизацию и типизацию. Правда, в довольно своеобразной форме, адаптированной к условиям отечественной базы строительной индустрии, не способной изготавливать впрок, по заданным сортаментам, строительные конструкции и элементы: «поручить ВСНХ к 15 декабря 1931 г. преподать проектным организациям инструкцию о порядке выбора и расчета конструкций и к тому же сроку выпустить стандартные расчетные таблицы, имеющие целью разгрузить проектные организации от излишней траты времени на техническую работу». Также предписывается снабдить проектные организации «пособиями по проектированию и светокопировальной аппаратурой»[71].

Следует констатировать, что до сих пор в российской научной литературе нет фундаментальных публикаций о деятельности А. Кана в СССР, основанных на изучении материалов российских архивов. Многие вопросы все еще остаются без ответов[72] и все еще ждут своих исследователей. Они дают интереснейший материал для тем магистерских и кандидатских диссертаций. Ответы на эти вопросы, а также дальнейшее углубленное изучение деятельности фирмы «Albert Kahn Associates, Inc.» в СССР может пролить новый свет на скрытые до сих пор ключевые эпизоды формирования системы промышленного проектирования в СССР, истории советской индустриализации, истории развития советской архитектуры. 


[1] Ленин В.И. Полн. собр. соч., 5 изд., т. 23, С. 18.
[2] Ленин В.И. Полн. собр. соч., 5 изд., т. 24, С. 369.
[3] Ленин В.И. Полн. собр. соч., 5 изд., т. 36, С. 189-190.
[4] Там же. С. 189-190.
[5] Меерович М.Г. Ассимилированное производство и советская модель мобилизационного «народного» хозяйства / Мобилизационная модель экономики: исторический опыт России ХХ века: сборник материалов всероссийской научной конференции. Челябинск, 28-29 ноября 2009. / под ред. Г.А. Гончарова, С.А. Баканова. – Челябинск: ООО «Энциклопедия». 2009. – 571 с., С. 199-210; Меерович М.Г. Ассимиляция производства. По материалам книги Л. Самуэльсона «Красный колосс» / Правда Виктора Суворова-2. Восстанавливая историю Второй Мировой / Сост. Д. Хмельницкий. – М.: Яуза-пресс, 2007. – 320 с., С.144-154.
[6] Валентинов Н. (Н. Вольский) Новая экономическая политика и кризис партии после смерти Ленина: Годы работы в ВСНХ во время НЭП. Воспоминания / Сост. и авт. вступ. ст. С. С. Волк. – М.: Современник, 1991. 367 с. (Серия мемуаров «Память»), С. 175.
[7] Ленин В.И. Полн. собр. соч., 5 изд., т. 36, С. 141.
[8] СУ РСФСР. 1932. № 84. ст. 516.
[9] «О введении трудовых книжек» – Постановление СНК СССР от 20 декабря 1938 г. / Решения партии и правительства по хозяйственным вопросам. М., 1967. Т. 2. С. 662-664.
[10] СП СССР. 1940. № 16. ст. 385.
[11] Шпотов Б.М. Западные источники индустриализации СССР (конец 1920-х – 1930-е гг.). [Электронный ресурс] - http://www.hse.ru/data/792/648/1237/guvshe.pdf - на русс. яз.
[12] Б. Шпотов. Компания Форда и Россия (1909—1929) [Электронный ресурс], режим доступа:
http://www.distedu.ru/mirror/_hist/www.1september.ru/ru/his/99/his29.htm - на русс. яз.
[13] Меерович М.Г. Квадратные метры принуждения: насильственное комплектование населения соцгородов (1929-1932) / Проблемы российской истории – М.; Магнитогорск: ИРИ РАН; МаГУ, 2010 Вып. Х. – 564 с., С. 358-384; Меерович М.Г. Индустриализация как коммунистический проект (промышленность, соцрасселение, соцгород, соцжилище) / Проект «Манчестер»: прошлое, настоящее и будущее индустриального города: сборник научных статей / под ред. М. Ю. Тимофеева. — Иваново: Иван. гос. ун-т, 2012. — 180 с. — ISBN 978-5-7807-0955-8., С. 120-151: То же: М.Г. Меерович // Лабиринт: журнал социально-гуманитарных исследований. – 2012. – Режим доступа:
http://journal-labirint.com/?page_id=1247– на русс. яз.
[14] Фураев В.К. Советско-американские отношения. 1917-1939. М.: Мысль,1964 -318 с., С. 249.
[15] ОАО "ГАЗ"/Горьковский автомобильный завод (ГАЗ)/ [Электронный ресурс] – Режим доступа: [Электронный ресурс] – Режим доступа:
http://www.avtomash.ru/pred/muzei_a/1918/1918-3.html  – на русс. яз. 
[16] Там же.
[17] Зато потом на долгие годы погружает страну в трясину «догоняющей экономики»
[18] Самуэльсон Л. Л. Красный колосс. Становление военно-промышленного комплекса СССР. 1921-1941. – М.: АИРО-ХХ, 2001. – 296 с., С. 157.
[19] Великая Отечественная война. Красная армия. Энциклопедия вооружения: Танки. Т-26 [электронный ресурс] 2009. 0,5 п.л. – режим доступа:
http://wwii-redarmy.narod.ru/T26.htm - на рус. яз.
[20] Там же.
[21] Самуэльсон Л. Л. Указ. соч., С. 189; Свирин М.Н. Броня Крепка. История советского танка. 1919-1937. М.: Яуза. Эксмо. 2005. – 384 с., С. 178.
[22] История отечественного автомобилестроения. Создание новой отрасли. [Электронный ресурс] – Режим доступа: http://www.avtomash.ru/pred/muzei_a/1918/1918-3.html – на русс. яз.
[23] Его строительство началось в ноябре 1929 г. недалеко от станции Бойня на Остаповском шоссе, а уже в мае следующего предприятие в основном было построено. К 13-й годовщине Октябрьской революции, 6 ноября 1930 года завод им. КИМ дал стране первые 20 автомобилей.
[24] Шпотов Б.М. Американский бизнес и Советский Союз в 1920-1930-е гг.: Лабиринты экономического сотрудничества. – М.: Книжный дом «ЛИБРОКОМ», 2013 - 320 с., С. 186.
[25] Свирин М.Н. Броня Крепка. История советского танка. 1919-1937. М.: Яуза. Эксмо. 2005. – 384 с., С. 143-144, 147-148, 154.
[26] Шпотов Б.М. Генри Форд: жизнь и бизнес М.: КДУ, 2003 - 384 с., С. 376.
[27] Шпотов Б.М. Американский бизнес … Указ. соч. С. 204.
[28] Благодарю Соню Мельникову-Рэйч за уточнения и замечания, сделанные в ходе работы над данным материалом.
[29] Термин Б.М. Шпотова (Шпотов Б.М. «Не дано нам историей тише идти» (техническая помощь Запада советской индустриализации) – [Электронный ресурс]- режим доступа:
http://www.historia.ru/2002/03/shpotov.htm - на рус яз. (последнее посещение - декабрь 2004).
[30] СЗ СССР. 1928. Отдел первый. № 33. ст. 297.
[31] Создан 1 мая 1924 г. в результате слияния «Продекско» и «Аркос-Америка»; зарегистрирован в Нью-Йорке.
[32] Sonia Melnikova-Raich, «The Soviet Problem with Two «Unknowns»: How an American Architect and a Soviet Negotiator Jump-Started the Industrialization of Russia», Part 1. IA: Journal of the Society for Industrial Archeology, Volume 36, Number 2 (2010), pp. 57-80, Р. 66.
[33] Шпотов Б.М. Американский бизнес и Советский Союз в 1920-1930-е гг.: Лабиринты экономического сотрудничества. – М.: Книжный дом «ЛИБРОКОМ», 2013 - 320 с., С. 206.
[34] Россия и США: торговые отношения, 1900-1930. Сб. документов / Под. Ред. Г.Н. Севастьянова. М., 1996. 469 с., С. 311.
[35] Sonia Melnikova-Raich, «The Soviet Problem with Two «Unknowns»: How an American Architect and a Soviet Negotiator Jump-Started the Industrialization of Russia», Part 1. IA: Journal of the Society for Industrial Archeology, Volume 36, Number 2 (2010), pp. 57-80, Р. 61.
[36] Industrial & Commercial Buildings. Albert Kahn, Inc., Architects & Engineers, Detroit. Mich., 1936.
[37] Sonia Melnikova-Raich. Указ. соч., С. 69.
[38] / Известия, 1930, № 29.
[39] Гуревич В. Жизнь инженера Гуревича. (Глава из книги «Челябинская баллада, или Как это делалось тогда») [Электронный ресурс] – режим доступа:
http://berkovich-zametki.com/2008/Zametki/Nomer2/Gurevich1.htm - на русс. яз.
[40] Хроника строительства. Американский опыт в наше строительство // Строительство Москвы. 1929, № 11. С. 40.
[41] Устав утвержден ВСНХ СССР 17 июня 1930 г. (СЗ, 1930, № 43, ст. 240)
[42] Sonia Melnikova-Raich, Указ. соч., Р. 62.
[43] Казусь И.А. Организация архитектурно-градостроительного проектирования в СССР: этапы, проблемы, противоречия (1917-1933 г. – дисс. на соиск. уч. ст. канд. арх. в 2-х т., М. 2001., С. 399.
[44] Постановление Наркомтяжпрома СССР № 119 от 21 февраля 1932 г.
[45] «Об организации сети контор строительного проектирования» – Постановление коллегии НКТП № 119 от 21 февраля 1932 г. // Наше строительство. 1932. № 9. с. 443-444., С. 443.
[46] / За индустриализацию, 5 февраля 1930 г.
[47] Андрей Константинович Буров: Письма. Дневники. Беседы с аспирантами. Суждения современников. – М.: Искусство, 1980. – 297 с., С. 42.
[48] Касьяненко И. Использование американского опыта в период становления советского промышленного зодчества (сотрудничество с фирмой Альберта Кана) / Взаимодействие культур СССР и США XVIII-XX вв. / Отв. ред. О.Э. Туганова. М., Наука. 1987. - 228 с., С. 111-121., С. 114.
[49] Касьяненко И. Указ. соч. С. 116.
[50] Николаев И. Советская промышленная архитектуре // Архитектура СССР, 1937. № 10. С. 23-29.
[51] Цветаев В.Д. Современная фабрично-заводская архитектура. М.-Л.: Госстройиздат. 1932. – 432 с.
[52] Ильинский Н. Взять все лучшее из американского проектирования // Строительство Москвы. 1931. № 11. С. 26.
[53] Шпотов Б.М. «Не дано нам историей тише идти» Указ. соч.
[54] Там же. С. 25.
[55] Гуревич М.Г. Промышленность СССР и американская техника. Постановка проектирования / Торгово-промышленная газета, 12 июня 1929 г. № 132. С. 2
[56] Письмо Эрика Мендельсона // Современная архитектура, 1927. № 3., С. 108.
[57] Ильинский Н. Указ. соч., 25.
[58] Ильинский Н. Указ. соч., С. 27.
[59] Ильинский Указ. соч.. С. 26.
[60] Там же. С. 26.
[61] Там же. С. 26.
[62] Там же. С. 27
[63] Там же. С. 26.
[64] Там же. С. 26.
[65] Там же. С. 26.
[66] Там же. С. 27.
[67] Андрей Константинович Буров. Указ. соч., С. 35.
[68] См. далее
[69] Постановление СТО от 26 ноября 1931 г. «О мероприятиях по упорядочиванию проектирования капитального строительства промышленности». СЗ СССР. 1931. № 69. Ст. 465.. с. 779-783., С. 780-781.
[70] Постановление СТО от 26 ноября 1931 г. «О мероприятиях по упорядочиванию проектирования капитального строительства промышленности». СЗ СССР. 1931. № 69. Ст. 465.. с. 779-783., С. 781.
[71] Постановление СТО от 26 ноября 1931 г. «О мероприятиях по упорядочиванию проектирования капитального строительства промышленности». СЗ СССР. 1931. № 69. Ст. 465.. с. 779-783., С. 782.
[72] Подробнее см.: Альберт Кан в истории советской индустриализации [электронный ресурс] / М.Г. Меерович /- режим доступа:
http://archi.ru/lib/publication.html?id
Рис. 1. Сталинградский тракторный завод. Перспектива с птичьего полета. Визуализация «Albert Kahn Associates Inc.»
Источник: Sonia Melnikova-Raich, «The Soviet Problem with Two «Unknowns»: How an American Architect and a Soviet Negotiator Jump-Started the Industrialization of Russia», Part 1. IA: Journal of the Society for Industrial Archeology, Volume 36, Number 2 (2010), pp. 57-80, Р. 67. (Публикуется с разрешения Сони Мельниковой-Рэйч)
Рис. 1. Сталинградский тракторный завод. Перспектива с птичьего полета. Визуализация «Albert Kahn Associates Inc.» Источник: Sonia Melnikova-Raich, «The Soviet Problem with Two «Unknowns»: How an American Architect and a Soviet Negotiator Jump-Started the Industrialization of Russia», Part 1. IA: Journal of the Society for Industrial Archeology, Volume 36, Number 2 (2010), pp. 57-80, Р. 67. (Публикуется с разрешения Сони Мельниковой-Рэйч)
Рис. 2. Подписание контракта между «Albert Kahn Associates Incorporated» и «Амторгом». Сидят (слева направо) Альберт Кан, Самуил Брон. 
Источник: Гуревич В. Жизнь инженера Гуревича. (Глава из книги «Челябинская баллада, или Как это делалось тогда») [Электронный ресурс] – режим доступа: http://berkovich-zametki.com/2008/Zametki/Nomer2/Gurevich1.htm - на русс. яз.
Рис. 2. Подписание контракта между «Albert Kahn Associates Incorporated» и «Амторгом». Сидят (слева направо) Альберт Кан, Самуил Брон. Источник: Гуревич В. Жизнь инженера Гуревича. (Глава из книги «Челябинская баллада, или Как это делалось тогда») [Электронный ресурс] – режим доступа: http://berkovich-zametki.com/2008/Zametki/Nomer2/Gurevich1.htm - на русс. яз.
Рис. 3. Челябинский тракторный завод. Перспектива с птичьего полета. Визуализация «Albert Kahn Associates Inc.» 
Источник: Sonia Melnikova-Raich, Указ. соч., Р. 67. (Публикуется с разрешения Сони Мельниковой-Рэйч)
Рис. 3. Челябинский тракторный завод. Перспектива с птичьего полета. Визуализация «Albert Kahn Associates Inc.» Источник: Sonia Melnikova-Raich, Указ. соч., Р. 67. (Публикуется с разрешения Сони Мельниковой-Рэйч)
Рис. 4. Кузнечный цех Челябинского тракторного завода. План. Чертеж Госпроектстроя. 
Источник: Цветаев В.Д. Современная фабрично-заводская архитектура. М.-Л.: Госстройиздат. 1932.  – 432 с., С. 52.
Рис. 4. Кузнечный цех Челябинского тракторного завода. План. Чертеж Госпроектстроя. Источник: Цветаев В.Д. Современная фабрично-заводская архитектура. М.-Л.: Госстройиздат. 1932. – 432 с., С. 52.
Рис. 5. Механосборочный цех (конвейер) Челябинского тракторного завода. План, разрез. Чертеж Госпроектстроя. 
Источник: Цветаев В.Д. Современная фабрично-заводская архитектура. М.-Л.: Госстройиздат. 1932.  – 432 с., С. 42.
Рис. 5. Механосборочный цех (конвейер) Челябинского тракторного завода. План, разрез. Чертеж Госпроектстроя. Источник: Цветаев В.Д. Современная фабрично-заводская архитектура. М.-Л.: Госстройиздат. 1932. – 432 с., С. 42.
Рис.6. Железнодорожные ворота американского типа. Детали. 
Источник: Цветаев В.Д. Современная фабрично-заводская архитектура. М.-Л.: Госстройиздат. 1932.  – 432 с., С. 410.
Рис.6. Железнодорожные ворота американского типа. Детали. Источник: Цветаев В.Д. Современная фабрично-заводская архитектура. М.-Л.: Госстройиздат. 1932. – 432 с., С. 410.
Рис. 7.  Деревянные оконные переплеты американского типа. 
Источник: Цветаев В.Д. Современная фабрично-заводская архитектура. М.-Л.: Госстройиздат. 1932.  – 432 с., С. 351.
Рис. 7. Деревянные оконные переплеты американского типа. Источник: Цветаев В.Д. Современная фабрично-заводская архитектура. М.-Л.: Госстройиздат. 1932. – 432 с., С. 351.
Рис. 8 Компоновочные чертежи фасада литейного цеха Харьковского тракторного завода, выполненные американскими архитекторами в Госпроектстрое (надписи сделаны на английском и русском языках).
Рис. 8 Компоновочные чертежи фасада литейного цеха Харьковского тракторного завода, выполненные американскими архитекторами в Госпроектстрое (надписи сделаны на английском и русском языках).